Town‑centre three‑bed with character and parking, chain free.
Allocated off‑street parking space included
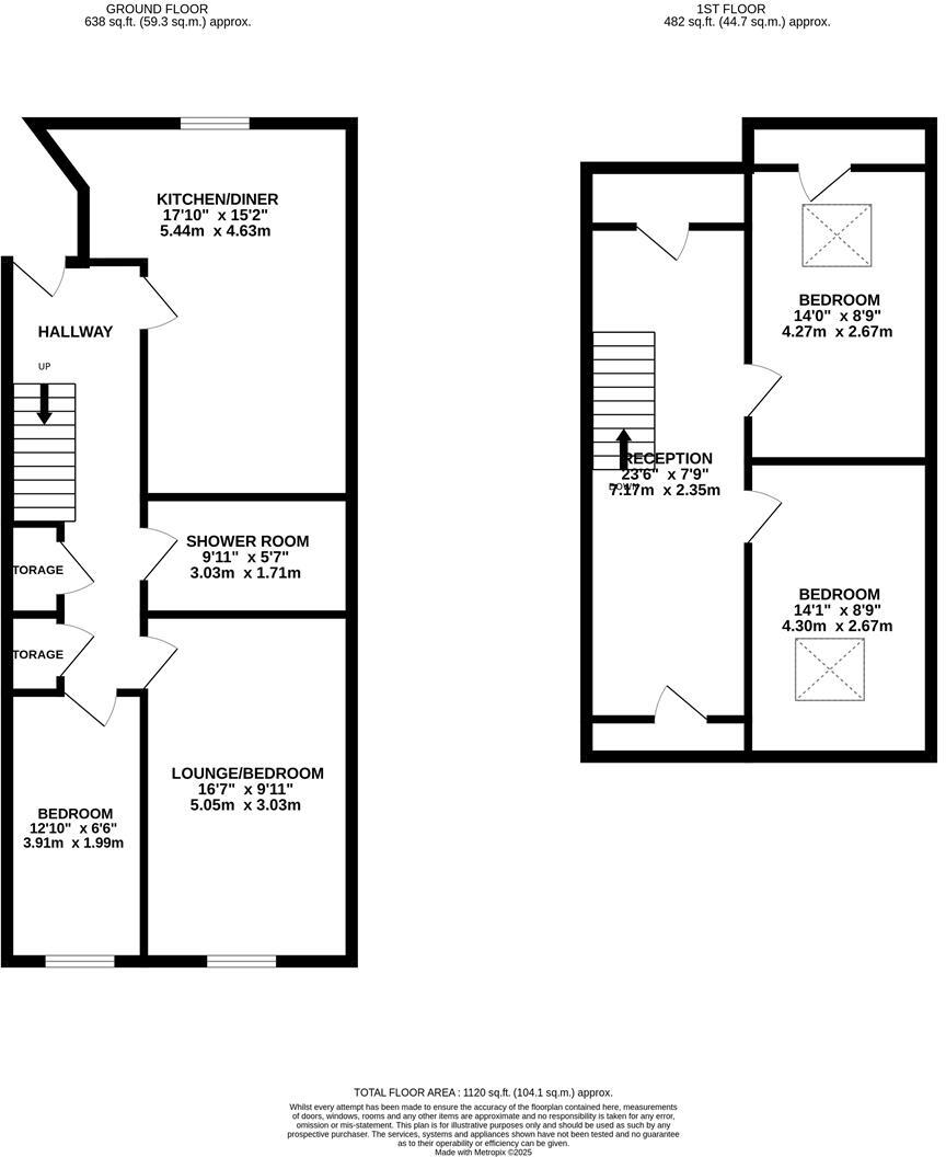
This spacious ground/top-floor apartment occupies a converted red‑brick mill building in central Kettering, offering flexible three- or four-bedroom accommodation over two floors. Large multi‑pane windows, exposed brickwork and high ceilings give the principal rooms character and generous natural light. The fitted kitchen includes integrated appliances and a wrap‑around layout with space for dining; allocated off‑street parking is a practical asset in a town‑centre location. The property is chain free and comes with a long lease (103 years remaining).
Practical running costs and tenure details are important: the flat is leasehold with an average service charge of £1,550 pa and a ground rent of £175 pa. EPC is rated D and heating is by mains‑gas boiler and radiators; the building was constructed around 2007–2011 and has double glazing (install date unknown). Internal space reads as small‑to‑average for some rooms but overall the layout suits a small family, sharers or a buy‑to‑let investor seeking central location and parking.
Buyers should note local context plainly: the property sits in an area classed as very deprived with a very high recorded crime level. There is no private garden and outdoor space is communal courtyard/parking only. Cosmetic updates in places (flooring, some finishes) would likely enhance value; a thorough viewing and survey are recommended to confirm condition and servicing.
For purchasers seeking convenience, this home places shops, schools and transport within easy reach and offers flexible living space with character features and modern kitchen fittings. The apartment will appeal to first‑time buyers or investors who prioritise central location and rental potential but who are comfortable with an urban setting and the responsibilities of leasehold ownership.
2 bedroom apartment for sale in Mobbs House, Queen Street, Kettering, NN16 — £130,000 • 2 bed • 2 bath • 624 ft²
1 bedroom flat for sale in Lahnstein Court, Kettering, Northamptonshire, NN16 — £110,000 • 1 bed • 1 bath • 562 ft²
1 bedroom apartment for sale in Orient House, Cobden Street, Kettering, NN16 — £90,000 • 1 bed • 1 bath • 404 ft²
1 bedroom apartment for sale in Railway View, Kettering, NN16 — £130,000 • 1 bed • 1 bath • 527 ft²
2 bedroom apartment for sale in Crescent West, Kettering, Northamptonshire, NN16 — £135,000 • 2 bed • 1 bath • 597 ft²
2 bedroom flat for sale in Lower Street, Kettering, NN16 — £140,000 • 2 bed • 1 bath • 606 ft²










































