Dual-income town-centre opportunity with patio and easy parking for investors.
- Dual-income mixed-use: shop plus two-bedroom apartment above
- Freehold ownership across both shop and flat
- Enclosed paved patio and cellar storage
- Three public carparks immediately to the rear
- Excellent mobile signal and fast broadband
- EPC rating E — upgrade may be required
- Located in very deprived/hampered aspiration area
- Three years income analysis available on request
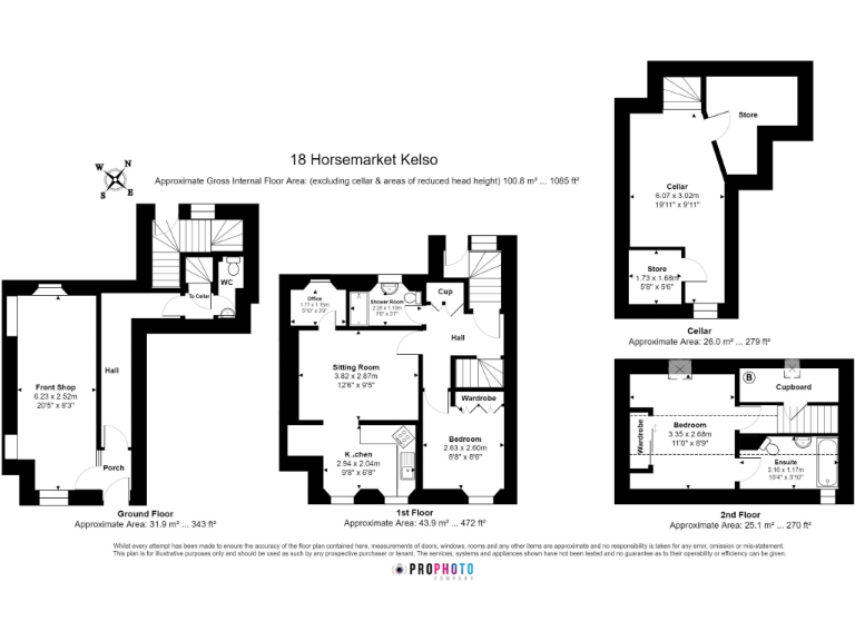
A purpose-built mixed-use opportunity in Kelso town centre, 18 Horsemarket combines a ground-floor commercial shop with a well-presented two-bedroom apartment above. The property is offered freehold and currently generates substantial income from both the shop and the flat; three years of income analysis can be provided on request.
The ground floor offers a traditional shopfront, cellar storage, WC and direct street access, while the upper apartment (multi-storey) includes a kitchen, lounge with office nook, main bathroom, and a second-floor double bedroom with ensuite. An enclosed paved patio provides external amenity and three large public carparks sit to the rear for easy customer or resident parking.
Practical strengths include excellent mobile signal, fast broadband and convenient town-centre retail footfall. For investors there is clear dual-income potential and straightforward management as a single freehold lot.
Notable considerations: the EPC rating is E, indicating relatively poor energy performance. The immediate area is classified as very deprived/hampered aspiration, which may affect rental levels or tenant profiles. Specific tenancy terms, leases and occupancy status are not included here and should be checked as part of due diligence.
Commercial property for sale in Commercial Premises At 22, Horsemarket, Kelso, TD5 7HE, TD5 — £150,000 • 1 bed • 1 bath • 635 ft²
Commercial property for sale in Commercial Premises - 1-5 Horsemarket, Kelso, TD5 7HE, TD5 — £145,000 • 1 bed • 2 bath • 2303 ft²
Commercial property for sale in 20 Horsemarket, Kelso, Roxburghshire, TD5 — £265,000 • 3 bed • 1 bath • 1580 ft²
Commercial property for sale in Office/Sudio, Oven Wynd
Kelso, TD5 7HS, TD5 — £30,000 • 1 bed • 1 bath • 3767 ft²
2 bedroom ground floor flat for sale in 62 Roxburgh Street, Kelso, TD5 7DH, TD5 — £100,000 • 2 bed • 1 bath • 872 ft²
2 bedroom flat for sale in Apartment 1, 4 Roxburgh Street, Kelso, TD5 — £135,000 • 2 bed • 1 bath • 613 ft²






























































































































