Spacious three-bedroom bungalow with paddocks and wide rural views.
Approximately 1 acre plot with two paddocks and panoramic countryside views
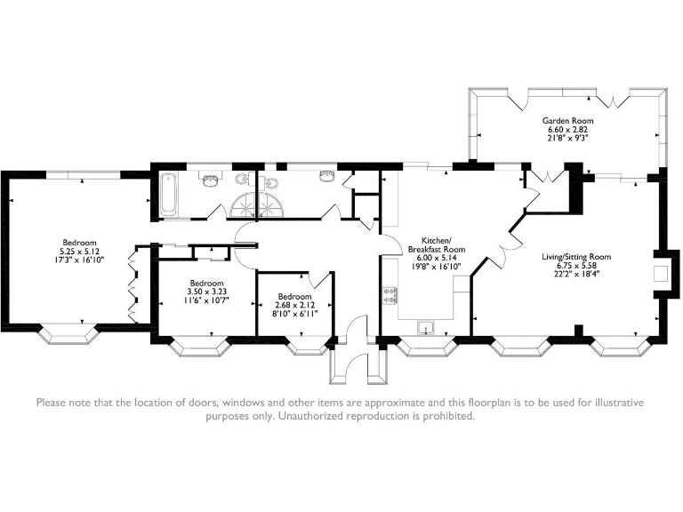
Hill Top Farm is a spacious three-bedroom detached bungalow set on about an acre with two paddocks and broad panoramic views over rolling Leicestershire countryside. The single-storey layout suits family living or anyone wanting level access, with a large dining kitchen, two reception rooms and a fully glazed garden room that frames the views and floods the living space with light.
The principal bedroom and second bedroom both include built-in storage, and the house benefits from double glazing (fitted post-2002). Practical features include ample gated driveway parking, oil-fired boiler central heating and private drainage. The plot offers immediate outdoor enjoyment plus clear potential for improvement or extension (subject to consents) if you want to increase living space or modernise finishes.
Notable practical points are straightfoward: heating is oil-fired (independent supply and running cost to consider), drainage is private, and broadband speeds are very slow — important if you need reliable home working. Council tax sits at Band E, above average for the area. The property is offered freehold and lies in a quiet hamlet with good road links to local towns and schools nearby.
Overall this is a characterful mid-century home on a generous, private plot. It will suit buyers seeking a peaceful rural setting with scope to update or adapt the house while enjoying mature gardens and paddocks immediately.
4 bedroom barn conversion for sale in Hill Farm, Laughton, Leicestershire, LE17 — £997,000 • 4 bed • 3 bath • 3050 ft²
5 bedroom country house for sale in Launde, Leicester, LE7 — £1,750,000 • 5 bed • 1 bath • 8616 ft²
3 bedroom detached bungalow for sale in Blaby Road, Enderby, Leicestershire, LE19 — £500,000 • 3 bed • 2 bath • 2068 ft²
Land for sale in Bulldyke Farm , LE16 — £2,100,000 • 1 bed • 1 bath • 13945 ft²
5 bedroom detached house for sale in Launde Road, Launde, LE7 — £1,650,000 • 5 bed • 4 bath • 2287 ft²
3 bedroom semi-detached house for sale in 1 Hilltop Farm Cottages, Croxton Kerrial, Grantham, NG32 — £295,000 • 3 bed • 1 bath • 844 ft²














































