Commuter-friendly flat with sunny balcony and long lease, ideal for first-time buyers.
Newly renovated throughout and ready to occupy
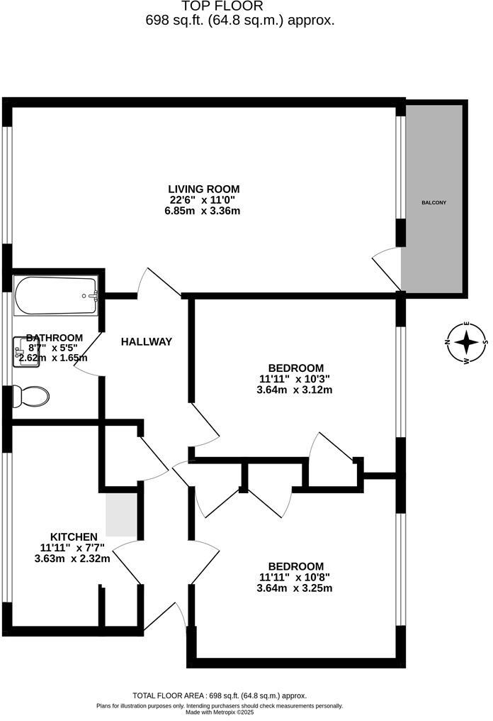
Bright, sensible and ready to move into, this newly renovated two-bedroom top-floor flat sits in a highly convenient spot for Haywards Heath station, town centre and Waitrose. The open-plan dual-aspect living room leads onto a southerly balcony with a pleasant leafy outlook, giving the apartment a light, airy feel. Both bedrooms are doubles with built-in wardrobes and the property benefits from a brand-new kitchen, gas central heating and uPVC double glazing.
Practicalities are straightforward: the flat is chain-free and offered with a share of the freehold and the remainder of a long lease, making it a low-hassle purchase for a first-time buyer or commuter. Residents’ off-street parking is available (non‑allocated) and the communal grounds are well maintained. Service charges run at about £2,160 per year (approx. £180 monthly) and ground rent is nominal.
The flat’s size (approximately 698 sq ft) is efficiently planned for everyday living, with room for sitting and dining in the large living area. The property is ideal for someone seeking a commuter-friendly home requiring no immediate work. Note there is only one bathroom and broadband speeds are reported as slow, which may affect heavy home-working needs.
2 bedroom flat for sale in Perrymount Road, Haywards Heath, RH16 — £230,000 • 2 bed • 1 bath • 763 ft²
2 bedroom maisonette for sale in Newton Court, Haywards Heath, West Sussex, RH16 — £225,000 • 2 bed • 1 bath • 630 ft²
2 bedroom flat for sale in Heath Road, Haywards Heath, RH16 — £260,000 • 2 bed • 2 bath • 618 ft²
2 bedroom flat for sale in Church Road, Haywards Heath, RH16 — £300,000 • 2 bed • 1 bath • 694 ft²
1 bedroom flat for sale in Boltro Road, Haywards Heath, RH16 — £220,000 • 1 bed • 1 bath • 637 ft²
2 bedroom flat for sale in Walstead Lodge , Haywards Heath , RH16 — £217,000 • 2 bed • 1 bath • 629 ft²


































