Compact, characterful one-bedroom with long lease and low running costs, ideal for first-time buyers..
- One double bedroom with fitted wardrobes
- Open-plan kitchen/reception with strong morning light
- Share of freehold; 955 years remaining on lease
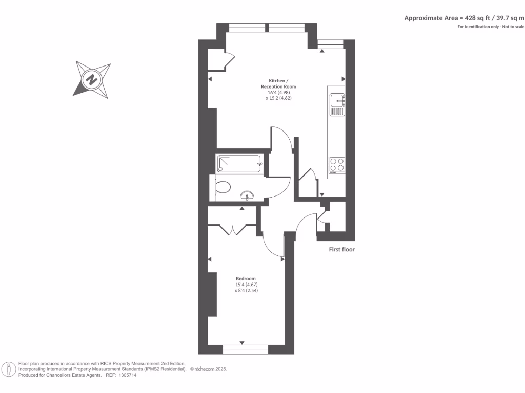
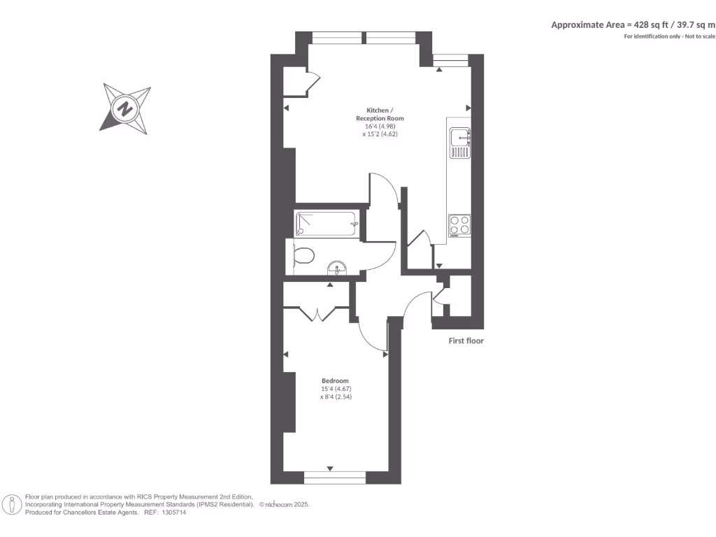
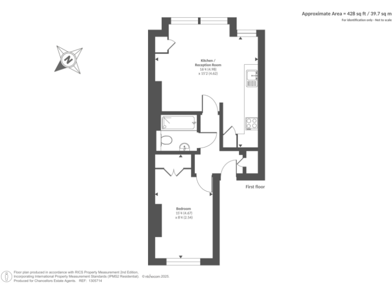
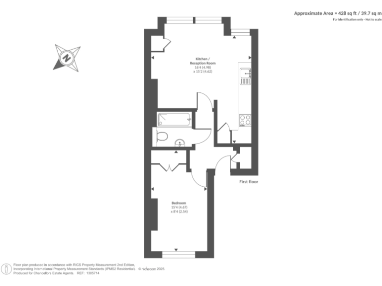
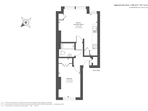
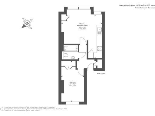
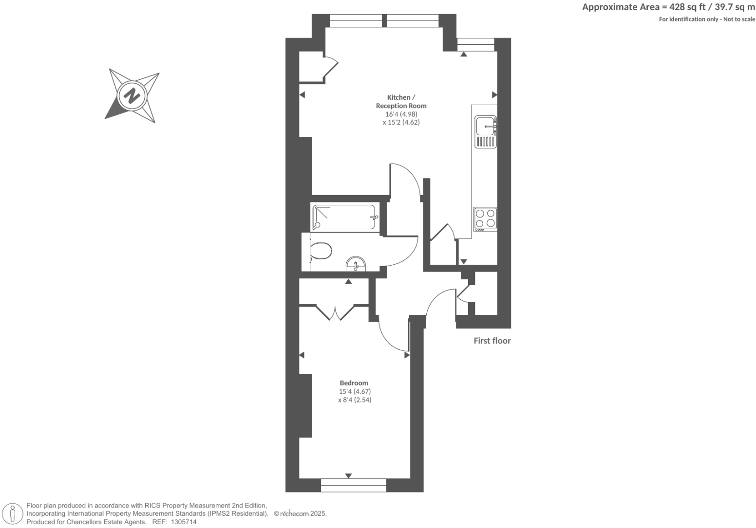
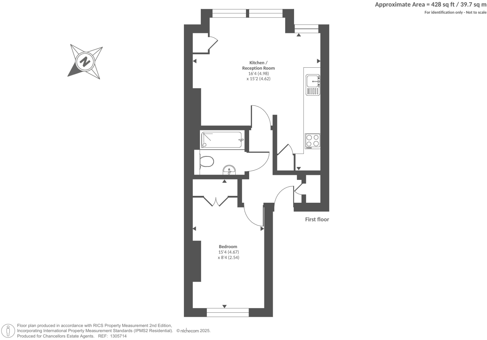
- Small overall size: approximately 428 sq ft
- Low outgoings and affordable council tax
- Solid brick walls; likely lacks modern insulation
- Double glazing present (install date unknown)
- Located close to shops, parks and transport links
Bright, compact and well-located, this first-floor one-bedroom flat sits in a period building on Burrard Road, within easy walking distance of West Hampstead’s shops, cafes and transport links. The open-plan kitchen/reception room and large front windows deliver welcoming morning light and generous ceiling height for the size, creating a comfortable urban home or a straightforward buy-to-let.
Practical strengths include a very long effective lease (share of freehold with 955 years remaining), low service outgoings and affordable council tax. The property’s period character and modern fittings such as double glazing (install date unknown) and gas central heating are immediate positives for buyers seeking a move-in-ready pied-à-terre or rental investment.
Buyers should note the flat is small (approximately 428 sq ft) and has solid brick walls likely without modern insulation, so there’s potential to improve thermal performance and reduce running costs. Crime is described as average for the area. Overall this is a convenient, low-maintenance city flat with clear scope for energy upgrades and optimisation of living space.
1 bedroom flat for sale in Messina Avenue, West Hampstead, NW6 — £375,000 • 1 bed • 1 bath • 495 ft²
1 bedroom flat for sale in Woodchurch Road, West Hampstead NW6 — £430,000 • 1 bed • 1 bath • 412 ft²
1 bedroom flat for sale in Sumatra Road, West Hampstead, NW6 — £400,000 • 1 bed • 1 bath • 476 ft²
1 bedroom flat for sale in Sumatra Road, West Hampstead, NW6 — £375,000 • 1 bed • 1 bath • 425 ft²
1 bedroom flat for sale in Sumatra Road, West Hampstead, London, NW6 — £400,000 • 1 bed • 1 bath • 484 ft²
1 bedroom apartment for sale in Agamemnon Road, London, NW6 — £465,000 • 1 bed • 1 bath • 440 ft²






































































