Spacious modern living opposite Cottenham Park, ideal for growing families.
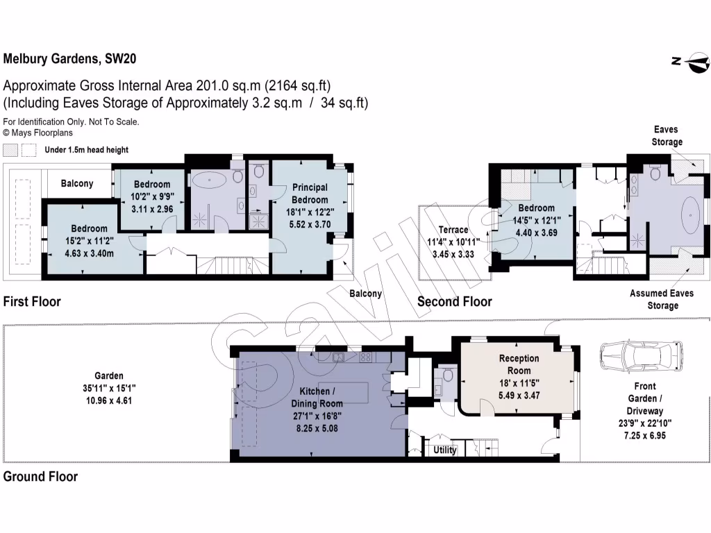
4 bedrooms, 3 bathrooms across three storeys, approx. 2,164 sq ft
New build finish throughout with new homes warranty certificate
Open-plan kitchen/dining/living with pantry and full-height sliding doors
Principal suite plus top-floor suite with dressing room and roof terrace
Landscaped garden, side access and off-street parking with EV charge point
EPC rating B; mains gas boiler and radiators, fast fibre broadband
Plot/build notes: construction-era listed as 1900–1929; insulation assumed
Glazing install dates and council tax band not provided — check in due diligence
A substantial newly built four-bedroom semi-detached house in prime West Wimbledon, finished to an exceptional standard and designed for generous family living and entertaining. The ground floor opens to a bay-fronted reception room and a large open-plan kitchen/dining/living space with full-height sliding doors to a landscaped garden and side access. Practical additions include a pantry, utility room and off-street parking with an EV charging point.
The first floor offers a principal bedroom suite with balcony and en suite, plus two further double bedrooms and a contemporary family bathroom with separate rainfall shower and freestanding tub. The entire top floor is arranged as a private suite with dressing room, roof terrace and luxurious en suite, plus useful eaves storage. The house extends to approximately 2,164 sq ft, providing flexible space across three storeys.
Located opposite Cottenham Park and about 0.7 miles from Raynes Park station, the home sits in a very affluent, low-crime neighbourhood with fast fibre broadband and good local schools nearby. Practical credentials include an EPC rating of B, mains gas heating, a new homes warranty certificate and excellent mobile signal.
Buyers should note a few practical points: the property is described as a new build but construction-era data lists 1900–1929 for the plot, and the wall insulation status is assumed (solid brick, no confirmed insulation). Glazing install dates are unspecified and council tax information is not provided. These are straightforward queries to resolve during due diligence.
5 bedroom semi-detached house for sale in Cottenham Park Road, Wimbledon, London, SW20 — £2,000,000 • 5 bed • 4 bath • 2795 ft²
4 bedroom semi-detached house for sale in Melbury Gardens, London, SW20 — £2,300,000 • 4 bed • 3 bath • 2128 ft²
4 bedroom house for sale in Cottenham Park Road, Wimbledon, SW20 — £2,075,000 • 4 bed • 2 bath • 2530 ft²
4 bedroom semi-detached house for sale in Orchard Grove, London, SW20 — £2,000,000 • 4 bed • 4 bath • 2153 ft²
4 bedroom house for sale in Orchard Grove, West Wimbledon, SW20 — £2,000,000 • 4 bed • 5 bath • 2152 ft²
4 bedroom house for sale in Orchard Grove, West Wimbledon, SW20 — £2,100,000 • 4 bed • 5 bath • 2185 ft²


























































