Affordable first-step with garage, garden and conservatory close to town.
50% Shared Ownership, housing association approval required
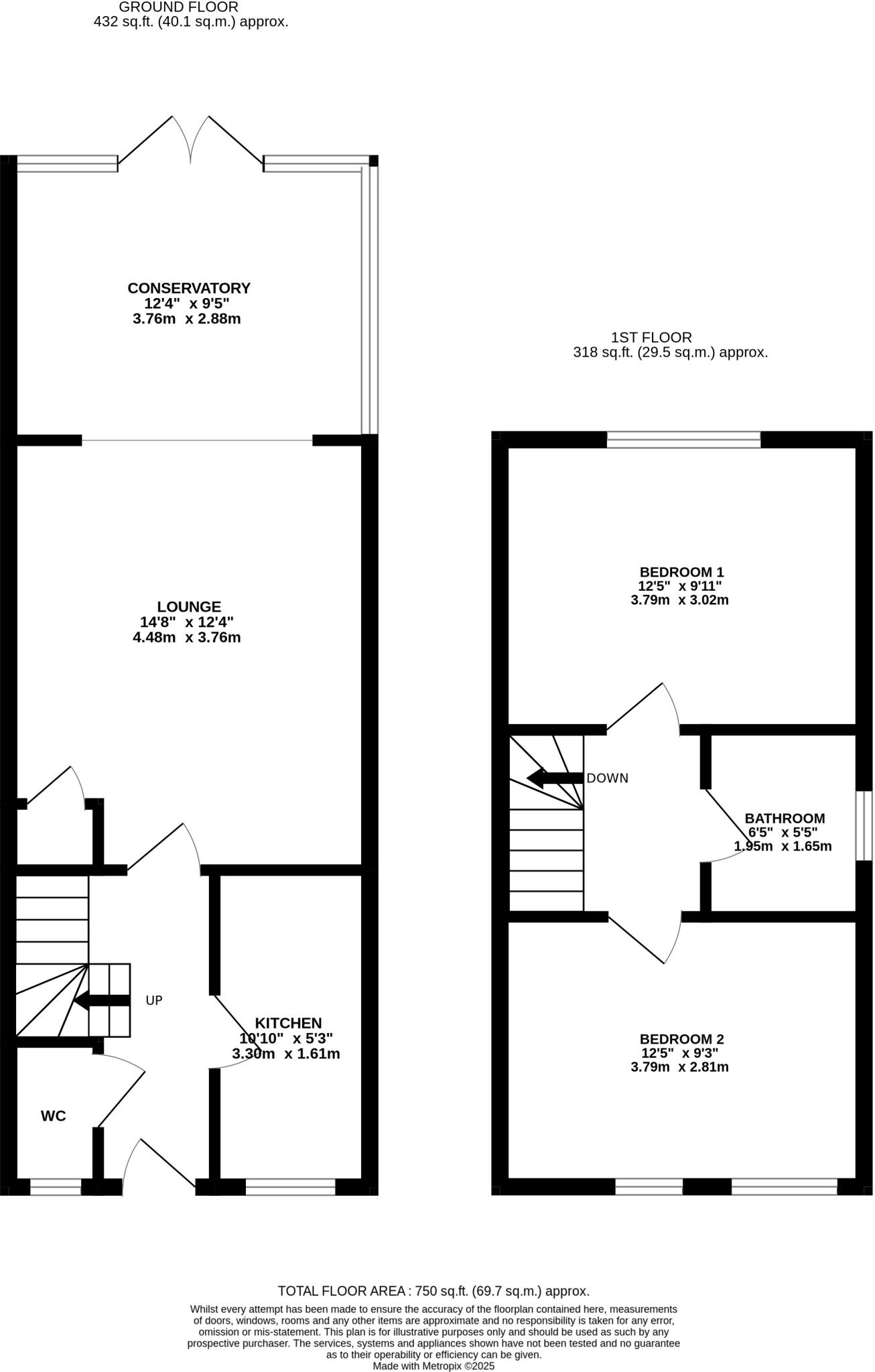
A practical two-bedroom end-terrace offered on a 50% Shared Ownership scheme, ideal for first-time buyers seeking an affordable step onto the property ladder. The ground floor offers a compact kitchen, a generous living room and an open conservatory that provides useful extra space for dining or home working. Outside there is an enclosed rear garden, front parking and a rear garage — useful for storage or parking.
The first floor has two bedrooms, the main with fitted sliding wardrobes, and a modern bathroom with bath and overhead shower. The property benefits from double glazing and oil-fired central heating via a boiler and radiators. Broadband speeds are fast and local amenities, including the town marketplace, are within easy walking distance.
Important practical points: the home is leasehold and part of a shared ownership arrangement with a housing association, which includes a rental charge on the 50% retained share and requires association approval for purchase. The house is constructed with solid brick walls (likely uninsulated) and uses oil heating, both of which may mean higher running or upgrading costs in future. No flooding risk is reported.
This modest, well-presented home suits buyers prioritising affordability, location and parking. It offers straightforward potential to increase ownership share later (subject to approval) or to personalise and improve insulation and heating over time.
3 bedroom semi-detached house for sale in The Maltings, Kirton Lindsey, Gainsborough, Lincolnshire, DN21 — £90,000 • 3 bed • 2 bath • 925 ft²
2 bedroom terraced house for sale in The Rookery, Scotter, DN21 — £70,000 • 2 bed • 1 bath • 650 ft²
2 bedroom terraced house for sale in Granary Fold, Scotter, DN21 — £110,000 • 2 bed • 1 bath • 573 ft²
2 bedroom end of terrace house for sale in Marshalls Rise, Gainsborough, DN21 — £120,000 • 2 bed • 1 bath • 658 ft²
3 bedroom end of terrace house for sale in Ings Road, Kirton Lindsey., DN21 — £175,000 • 3 bed • 1 bath • 1067 ft²
2 bedroom semi-detached house for sale in West End Road, Laughton, Gainsborough, DN21 — £60,000 • 2 bed • 1 bath • 815 ft²


























































