- Two bedrooms with conservatory adding flexible living space
- Private garden; small plot size
- Off-street parking for one vehicle
- Freehold tenure and low council tax
- Mains-gas boiler and radiator heating; double glazing (install date unknown)
- Solid brick walls assumed uninsulated — insulation may be required
- Local crime above average — consider security measures
- Excellent mobile signal and fast broadband speeds
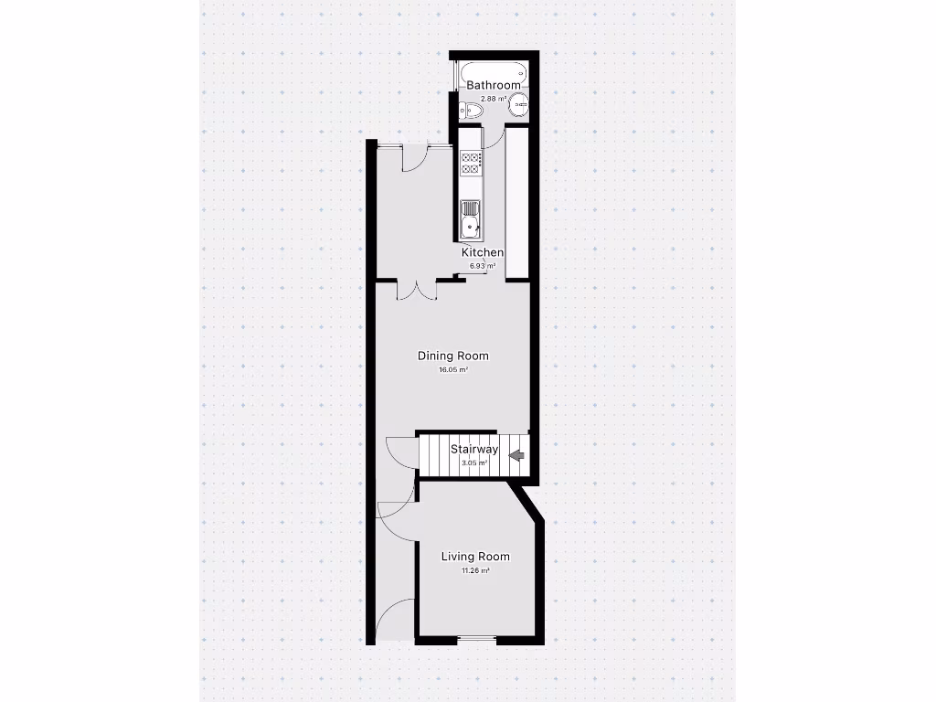
This two-bedroom mid-terraced house offers a practical first home in West Bridgford with a private garden and off-street parking. Rooms are modest but functional across approximately 829 sq ft, including a conservatory that adds flexible living space. Broadband and mobile signal are strong, and the property is freehold with low council tax.
The house dates from the early 20th century and retains period character in its brickwork and interior details. Heating is by mains-gas boiler and radiators; windows are double glazed though the install date is unknown. The solid-brick walls are assumed to have no cavity insulation, so buyers should budget for insulation or energy-efficiency improvements.
Local schools are highly regarded and the neighbourhood suits professionals and young families. Practical advantages include off-street parking and good transport and amenity access. Financially, the property could work for first-time buyers wanting an affordable entry into a very affluent area, or investors seeking a rental in a strong local market.
Notable drawbacks are factual: the plot is small, the property will likely need updating and insulation work, and local crime rates are above average. Mechanical systems and appliances have not been tested; purchasers should commission surveys and checks for wiring, heating, and structural condition before committing.



































































