Characterful period home with cellar and loft room, ideal for first buyers.
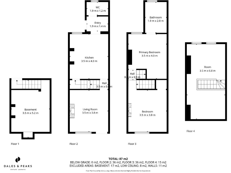
1022 sqft over basement, ground, first and loft rooms
This Victorian mid-terrace offers 1,022 sqft across basement, three storeys and a useful loft room, combining original character with recent tasteful styling. The lounge retains an exposed brick fireplace and there’s a modern kitchen with integrated oven plus a chic bathroom — practical, well-presented accommodation for a couple, small family or investor.
Practical features include a cellar for storage or utility use, mains gas central heating with boiler and radiators, and double glazing fitted since 2002. The property is freehold, council tax band A (very cheap), and sits in a convenient semi-urban setting near local shops, schools and parkland — good for rental demand or first-time buyers seeking walkable amenities.
Considerations: walls are original solid brick with assumed no cavity insulation, and the plot is small with only a forecourt to the front. The area is described as working‑class terraces and some local deprivation indicators; external condition appears fair but internal inspection is advised. EPC currently TBC and some modernisation or insulation works may be needed to improve energy efficiency and long‑term running costs.
Overall this house balances period charm with contemporary touches and scope for further improvement — appealing to buyers wanting a ready-to-live-in home with short-term rental potential or those planning selective upgrades to add value.
2 bedroom semi-detached house for sale in St. Thomas Street, Brampton, S40 — £200,000 • 2 bed • 1 bath • 797 ft²
2 bedroom terraced house for sale in Chesterfield Avenue, New Whittington, Chesterfield, Derbyshire, S43 — £110,000 • 2 bed • 1 bath • 836 ft²
2 bedroom terraced house for sale in Princess Street, Chesterfield, Derbyshire, S41 — £185,000 • 2 bed • 1 bath • 1140 ft²
2 bedroom end of terrace house for sale in Sanforth Street, Chesterfield, S41 — £139,500 • 2 bed • 1 bath • 680 ft²
2 bedroom terraced house for sale in Victoria Street, Clay Cross, Chesterfield, S45 — £125,000 • 2 bed • 1 bath • 802 ft²
2 bedroom terraced house for sale in New Queen Street, Newbold, Chesterfield, S41 — £175,000 • 2 bed • 1 bath • 945 ft²






















































































