Low-maintenance single-storey living close to Market Drayton amenities.
Designed for over-55s age restriction applies
Recently renovated — move-in ready condition
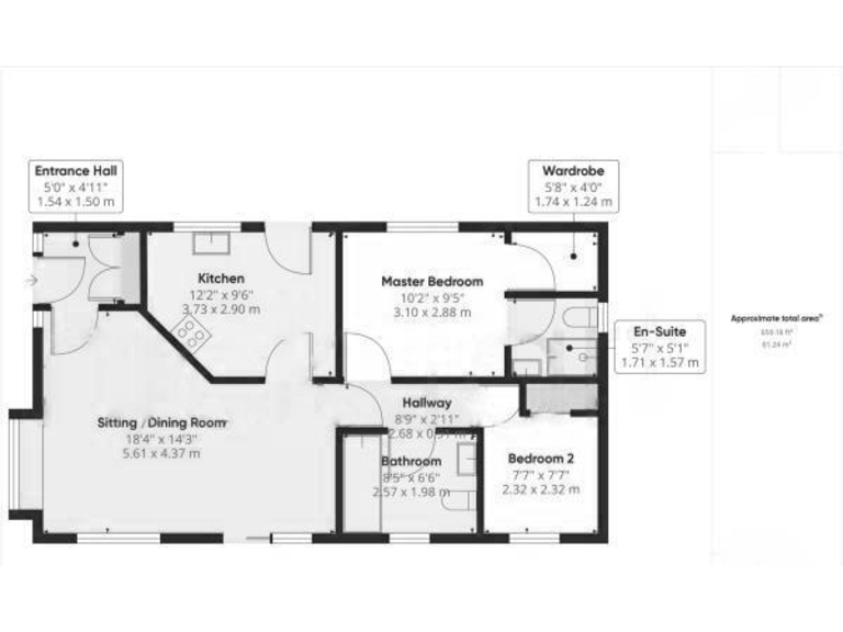
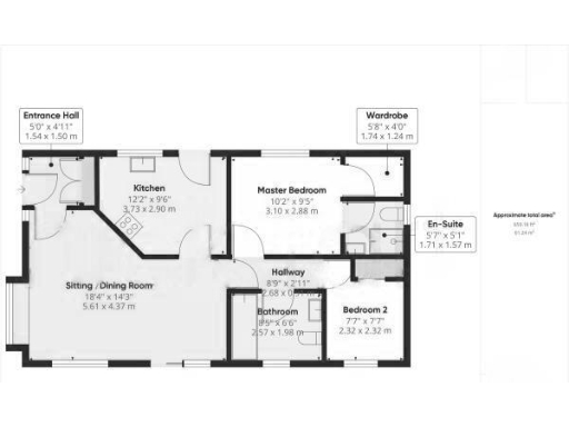
Master bedroom with dressing room and en suite
Detached garage plus private driveway parking
Corner plot with wrap-around, low-maintenance gardens
Very slow broadband; average mobile signal
Single-storey park home with low-to-standard ceiling heights
Very low local crime and cheap council tax
This immaculately presented two-bedroom park home has been recently updated and is specifically designed for the over-55s. The accommodation is bright and practical, with a sitting/dining room, modern kitchen with integrated appliances, a master bedroom with dressing room and en suite, plus a second bedroom and separate bathroom. The single-storey layout and low-maintenance exterior suit a downsizing lifestyle.
Set on a corner plot with wrap-around gardens, the home includes a detached garage, private driveway parking and access to visitor parking and a large dog-walking area. The interior is tidy and move-in ready following recent renovations; gas living-flame fire and French doors add a comfortable, homely feel. Council tax is very cheap and the location benefits from very low crime and easy road links to Market Drayton and the A41.
Practical considerations: the property sits in an over-55s park development and is a park home construction with relatively low to standard ceiling heights. Broadband speeds are very slow and mobile signal is average, which may affect home-working or heavy internet use. Overall, this is a well-presented retirement option for anyone seeking low-maintenance, single-storey living close to town amenities.
2 bedroom detached house for sale in The Moorings, Long Lane, Telford, Shropshire, TF6 — £175,000 • 2 bed • 2 bath • 1411 ft²
2 bedroom campsite holiday village for sale in Warren Park, Warrant Road, Stoke-on-Tern, Market Drayton, Shropshire, TF9 — £199,950 • 2 bed • 2 bath • 939 ft²
2 bedroom park home for sale in Market Drayton, Shropshire, TF9 — £199,995 • 2 bed • 2 bath • 830 ft²
2 bedroom park home for sale in Old Willow Road, Breton Park, Muxton, TF2 — £140,000 • 2 bed • 1 bath • 863 ft²
2 bedroom park home for sale in Craft Way, Breton Park, Muxton, TF2 — £140,000 • 2 bed • 1 bath • 682 ft²
2 bedroom park home for sale in The Moorings, Long Lane, Nr. Telford, TF6 6HD, TF6 — £115,000 • 2 bed • 1 bath • 614 ft²






















































