**Standout Features:**
- Ground floor apartment in historic multi-story building
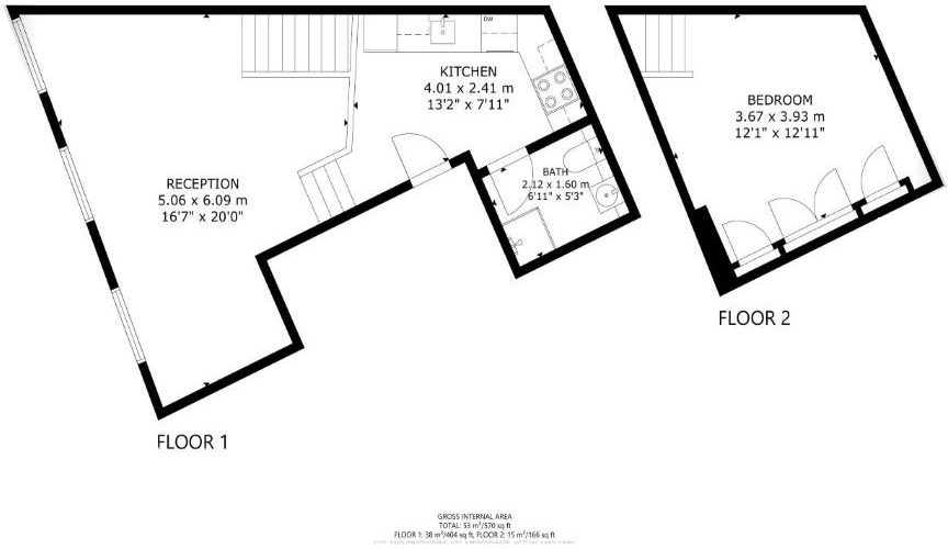
- Open plan kitchen/living room measuring 20'3" x 19'7"
- One spacious bedroom and modern bathroom
- Tenanted, generating £875 PCM—ideal for investors
- Prime city center location with abundant amenities nearby
- EPC Rating: D; Council Tax Band: F
- Leasehold with 979 years left on the lease
**Summary:**
This charming one-bedroom ground floor apartment, nestled in a grand historic building on Westgate Street, presents an exceptional investment opportunity for savvy buyers. With a spacious open plan kitchen/living area—perfect for entertaining—and a contemporary bathroom, this property boasts a cozy yet modern living experience. Current tenants are in contract, yielding a robust rental return of £875 per month, underlining its rental pedigree amidst a vibrant, multicultural neighborhood.
While the property is conveniently positioned near a host of bars, restaurants, and Cardiff Central train station, it's essential to note the high council tax and service charge of approximately £308 per month, reflecting the building's ongoing maintenance needs. The apartment features electric heating, double glazing, and a modern kitchen with appliances, while the substantial living space welcomes you with ample natural light. With its lease extending well into the future, this apartment not only serves as an investment opportunity but also as a canvas for your vision. Don’t miss out on the chance to own this centrally located gem—properties of this caliber don’t linger long in the market!
1 bedroom apartment for sale in Westgate Street, Cardiff, CF10 — £100,000 • 1 bed • 1 bath • 771 ft²
2 bedroom apartment for sale in Westgate Street, City Centre, Cardiff, CF10 — £250,000 • 2 bed • 1 bath • 761 ft²
2 bedroom apartment for sale in Westgate Street, City Centre, Cardiff, CF10 — £224,000 • 2 bed • 2 bath • 727 ft²
3 bedroom apartment for sale in Westgate Street, Cardiff, CF10 — £210,000 • 3 bed • 1 bath
2 bedroom apartment for sale in The Grand, Westgate St, Cardiff, CF10 — £125,000 • 2 bed • 1 bath • 759 ft²
2 bedroom flat for sale in Westgate Street, Cardiff, CF10 — £199,000 • 2 bed • 1 bath • 742 ft²






















