Energy-efficient five-bedroom family home in award-winning Elmsbrook with excellent transport links..
- Five double bedrooms with two en-suites and family bathroom
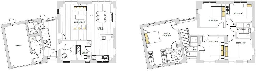
- Open-plan kitchen/dining/family room plus separate living room
- Eco features: solar PV, rainwater harvesting, district heating
- Triple glazing and Bosch integrated kitchen appliances
- Integral garage; modest plot with manageable garden space
- New-build freehold with modern panelled exterior
- Local broadband speeds slow; may affect remote working
- Local recorded crime levels are high; investigate further
This five-bedroom detached home in Elmsbrook offers contemporary family living with strong eco-credentials. Designed as part of an award-winning development, the house includes solar panels, rainwater harvesting, district heating and triple glazing to reduce running costs and carbon footprint.
The layout works for everyday family life: a bright open-plan kitchen/dining/family space and separate living room both open to the garden, plus a utility and ground-floor WC. Upstairs are five double bedrooms, including a spacious master with en-suite and a second en-suite, and a separate study for home working.
Practical benefits include an integral garage and Bosch integrated kitchen appliances. The plot is modest in size, so outdoor space is manageable rather than expansive. Broadband speeds in the area are reported as slow, and local recorded crime levels are high; consider these factors if fast home working or a quieter locale are priorities.
As a new-build freehold on a modern eco-development, this property suits buyers seeking a low-maintenance, energy-efficient family home with good commuter links. Some buyers may prefer larger gardens or faster broadband, but the specification and sustainable systems present clear long-term value.
5 bedroom detached house for sale in Haricot Vale Road, Bicester, OX27 — £650,000 • 5 bed • 2 bath • 1942 ft²
5 bedroom detached house for sale in Haricot Vale Road, Bicester, OX27 — £585,000 • 5 bed • 2 bath • 1988 ft²
3 bedroom end of terrace house for sale in Chantenay Close, Bicester, OX27 — £430,000 • 3 bed • 2 bath • 992 ft²
5 bedroom detached house for sale in Wintergreen Fields, Bicester, OX27 — £650,000 • 5 bed • 3 bath • 1765 ft²
2 bedroom semi-detached house for sale in Blueberry Drive, Bicester, OX27 — £360,000 • 2 bed • 2 bath • 906 ft²
2 bedroom terraced house for sale in Charlotte Avenue, Bicester, OX27 — £340,000 • 2 bed • 2 bath • 924 ft²






















































