Large family-friendly town house with garage and parking on a quiet cul-de-sac.
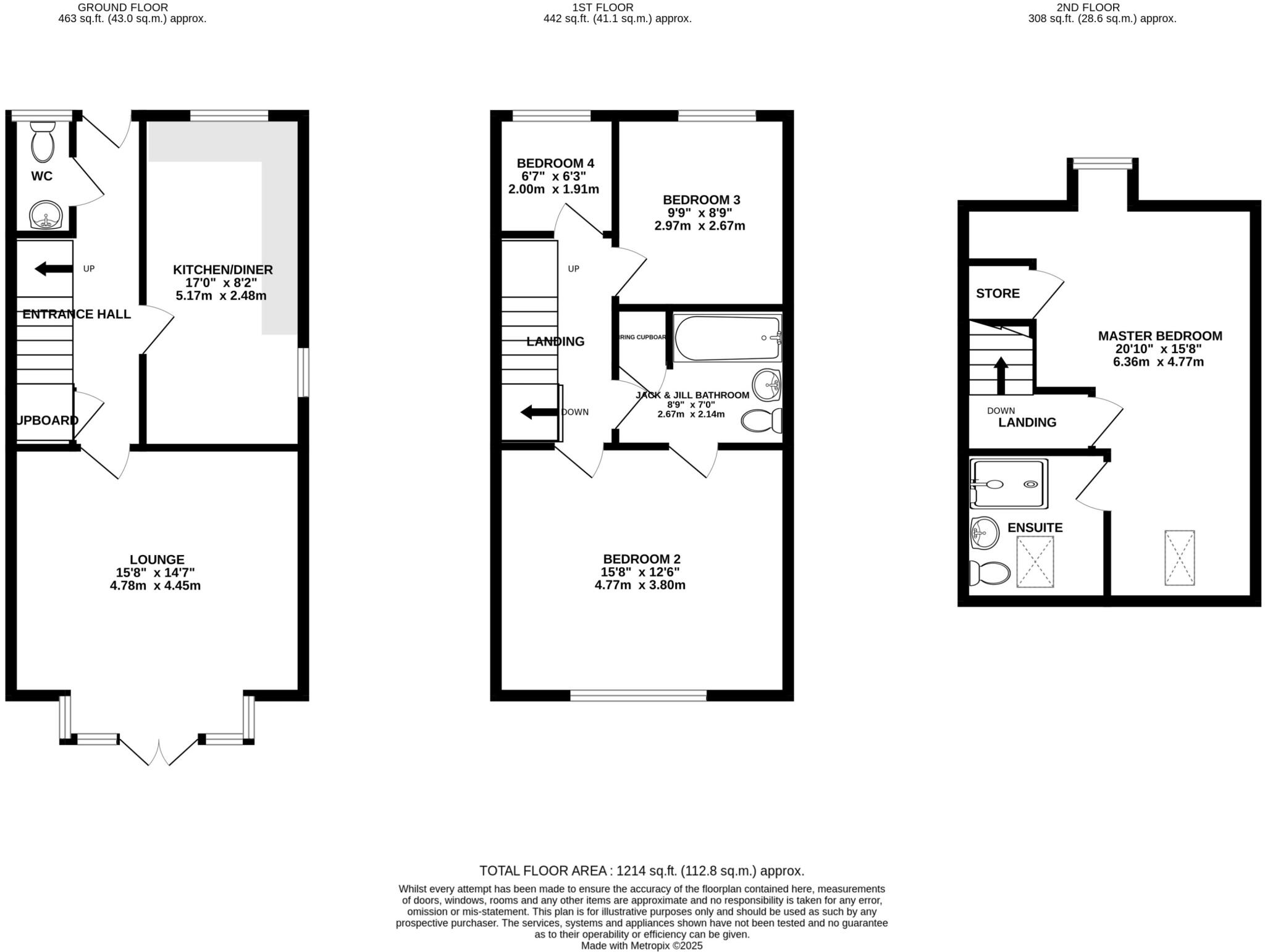
Four bedrooms across three floors, including top-floor master en-suite
Spacious four-bedroom end townhouse arranged over three floors, designed to suit a growing family. The ground floor offers a dining kitchen and large lounge, while the top-floor master benefits from an en-suite; an additional Jack & Jill bathroom serves the first-floor bedrooms. Off-road parking plus a detached garage add practical storage and parking space.
Set on a quiet cul-de-sac in Woodville, the house sits on a relatively small plot but makes efficient use of its 1,214 sq ft internal area. The contemporary kitchen, modern exterior and balcony provide a fresh, uncluttered feel, while excellent mobile signal and fast broadband support home working and streaming. EPC rating C indicates reasonable energy performance for the age and style of the property.
Buyers should note a few material considerations: the rear/side garden is small and the property sits in a neighbourhood with average crime levels. Several nearby primary schools have unsatisfactory Ofsted ratings and the nearest secondary requires improvement, which may concern families prioritising school performance. Overall, this freehold townhouse offers generous internal space and practical parking, ideal for families seeking affordable accommodation in an accessible town location, but buyers wanting larger gardens or top-performing schools should weigh these points.
5 bedroom detached house for sale in Brunt Lane, Woodville, Swadlincote, Derbyshire, DE11 — £325,000 • 5 bed • 2 bath • 1254 ft²
3 bedroom town house for sale in Blueberry Way, Woodville, Swadlincote, Derbyshire, DE11 — £220,000 • 3 bed • 2 bath • 1034 ft²
4 bedroom town house for sale in Panama Road, Burton-on-Trent, DE13 — £225,000 • 4 bed • 2 bath • 1006 ft²
4 bedroom semi-detached house for sale in Herbert Drive, Hartshorne, DE11 — £270,000 • 4 bed • 2 bath • 1120 ft²
4 bedroom detached house for sale in Bluebell Grove, Woodville, DE11 8FY., DE11 — £325,000 • 4 bed • 2 bath • 1336 ft²
4 bedroom terraced house for sale in Panama Road, Burton-On-Trent, DE13 — £225,000 • 4 bed • 2 bath • 743 ft²


























































































































