Spacious new-build with low-carbon heating and fast EV charging.
Five double bedrooms and four bathrooms, two en-suites
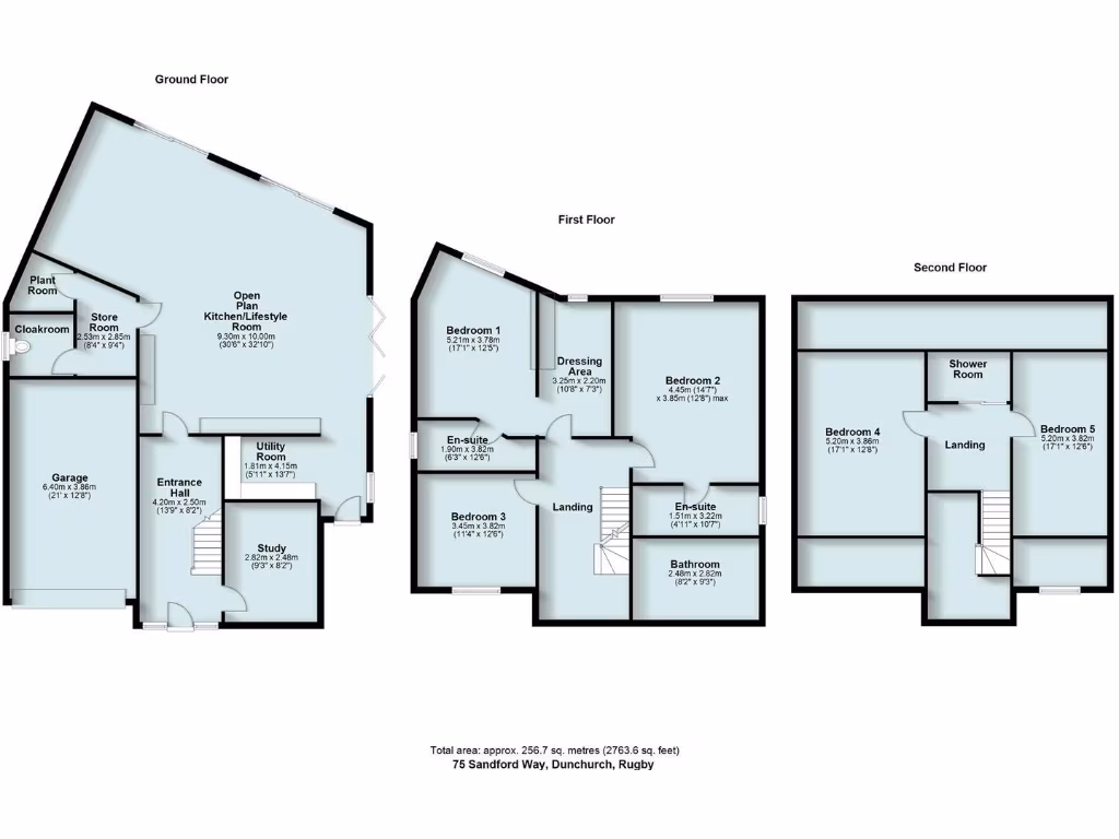
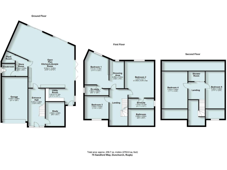
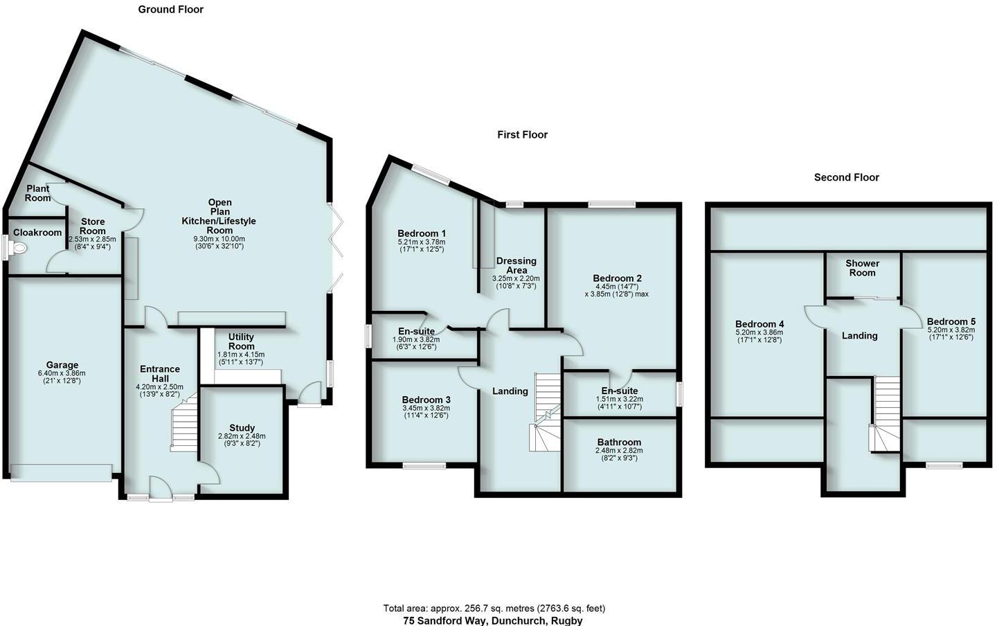
A newly built five-bedroom detached home offering over 2,700 sq ft of flexible family living across three floors. The house is finished to a high specification with a bespoke RFK kitchen option, impressive open-plan kitchen/lifestyle room and four bathrooms (two en-suites), designed for contemporary family life and entertaining.
Practical, low-carbon features include an A-rated Grant air source heat pump, multi-zone smart underfloor heating on the ground floor, a 2.7kW solar array (isolator fitted for an optional battery) and a 22kW EV charging point fed by three-phase supply. Triple-glazed black aluminium windows, integrated alarm and LED lighting add modern convenience, and a 10-year Buildzone structural warranty provides peace of mind.
Early purchasers can personalise some finishes (kitchen specification, certain tiling and some floor coverings) but any upgrades beyond the included budget will incur additional costs and must be agreed before order. Broadband speeds in the area are reported slow — important to consider if you require high-capacity home working or streaming. Council tax banding and final utility/service checks are yet to be confirmed.
Set within Dunchurch, the home sits close to village amenities and highly regarded local schools, while Rugby station (fast services to London) is a short drive away. The plot includes a landscaped garden, sizable driveway and a remote-control double garage — a practical family base in a quiet, affluent neighbourhood.
5 bedroom detached house for sale in Ashlawn Gardens, Rugby, CV22 — £637,000 • 5 bed • 4 bath • 1660 ft²
3 bedroom detached house for sale in Daventry Road,
Dunchurch,
Rugby,
CV22 6NT
, CV22 — £410,000 • 3 bed • 1 bath • 362 ft²
5 bedroom detached house for sale in Cawston Lane, Dunchurch, Rugby, CV22 — £625,000 • 5 bed • 2 bath • 1562 ft²
4 bedroom detached house for sale in Daventry Road,
Dunchurch,
Rugby,
CV22 6NT
, CV22 — £640,000 • 4 bed • 1 bath • 524 ft²
4 bedroom detached house for sale in Russell Avenue, Dunchurch, Rugby, Five Car Driveway & Double Garage, CV22 — £500,000 • 4 bed • 2 bath • 1566 ft²
6 bedroom detached house for sale in Herdwick Close, Long Lawford, Rugby, CV23 — £550,000 • 6 bed • 3 bath • 2099 ft²


























































