Chain-free three-bed detached with garage and garden — renovation opportunity close to amenities.
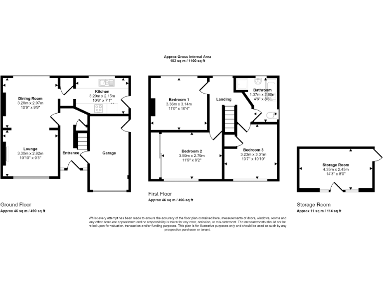
Three double bedrooms across two floors
Single family bathroom only; potential for additional bathroom
Chain free freehold—purchase can be quicker
Requires full cosmetic renovation throughout
Off-street driveway, garage and private rear garden
Small plot in an area with very high recorded crime
Fast broadband and excellent mobile signal for home working
Located near several primary and secondary schools (mixed Ofsted)
This three-bedroom detached home on Belstead Road offers spacious rooms and genuine renovation potential for a buyer willing to invest. With around 1,100 sq ft, a private rear garden, driveway and garage, the layout suits a family wanting room to adapt and improve.
The property is chain free and freehold, simplifying purchase. Internally the house features a living room, separate dining room, fitted kitchen and three double bedrooms upstairs, all with standard ceiling heights. There is one family bathroom; adding a second bathroom or en-suite would increase comfort and value.
Key positives include off-street parking, garage access and fast broadband plus excellent mobile signal — useful for home working. The local area has a mix of nearby primary and secondary schools (several rated Good) and frequent bus links. Buyers should note the home needs renovation and cosmetic updating throughout, offering scope to personalise finishes and increase resale value.
Be candid about the location: the wider area is classified as deprived with very high recorded crime, and the plot is small. These factors may affect some buyers’ priorities and insurance/costs. For those seeking a project in Ipswich with solid structural bones and clear upside, this property is a practical, chain-free opportunity.
3 bedroom detached house for sale in Sprites Lane, Belstead, IP8 — £325,000 • 3 bed • 1 bath • 1052 ft²
3 bedroom detached house for sale in Britannia Road, Ipswich, IP4 — £275,000 • 3 bed • 1 bath • 843 ft²
4 bedroom detached house for sale in Egglestone Close, Ipswich, Suffolk, IP2 — £300,000 • 4 bed • 2 bath • 1468 ft²
3 bedroom semi-detached house for sale in Carmarthen Close, Ipswich, Suffolk, IP2 — £260,000 • 3 bed • 2 bath • 959 ft²
4 bedroom detached house for sale in The Chestnuts, Ipswich, Suffolk, IP2 — £350,000 • 4 bed • 1 bath • 1452 ft²
3 bedroom semi-detached house for sale in Belstead Road, Ipswich, IP2 — £150,000 • 3 bed • 1 bath • 905 ft²










































