**Standout Features:**
- Modernized stone-built mid-terrace with original features
- Spacious living areas and large kitchen diner
- Gas central heating with modern condensing combi-boiler
- UPVC double glazing and home alarm system
- Rear garden with flagged patio for outdoor enjoyment
- Attractive location on a cobbled street with on-street parking
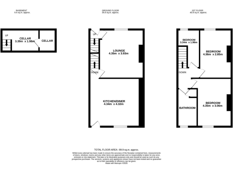
**Overview:**
Discover this charming and beautifully modernized three-bedroom stone-built mid-terrace home, ideally located on the picturesque cobbled Airedale Street in Eccleshill. Perfect for first-time buyers or couples, this property offers a blend of period charm and contemporary convenience, featuring original cornicing and a striking ceiling rose. The spacious living room and generously sized kitchen diner serve as the heart of the home, appealing to those who love to entertain or enjoy family meals.
Upstairs, you’ll find three inviting bedrooms and a modern bathroom, all enhanced by gas central heating and energy-efficient UPVC double glazing. The rear garden provides a lovely personal oasis for relaxation and outdoor activities. While the area shows some crime rates above average, it retains a community spirit supported by local amenities, including nearby schools with good Ofsted ratings. With excellent mobile and broadband connectivity, this home ensures you're well-connected.
This value-packed property, priced at £149,950, is ready for you to move in and enjoy, but early viewing is essential—opportunities like this don’t last long! Seize the chance to secure your own slice of comfort and character in this desirable neighborhood.
3 bedroom town house for sale in Moorside Croft, Eccleshill, BD2 — £155,000 • 3 bed • 1 bath • 843 ft²
4 bedroom town house for sale in Loxley Close, Bradford, West Yorkshire, BD2 — £195,000 • 4 bed • 2 bath • 1069 ft²
3 bedroom terraced house for sale in Mount Avenue, Eccleshill, Bradford, BD2 — £120,000 • 3 bed • 2 bath • 786 ft²
3 bedroom semi-detached house for sale in Loxley Close, Bradford, West Yorkshire, BD2 — £200,000 • 3 bed • 2 bath • 981 ft²
3 bedroom town house for sale in Sovereign Court, Eccleshill, Bradford, BD2 — £190,000 • 3 bed • 1 bath • 877 ft²
3 bedroom semi-detached house for sale in Leeds Road, Eccleshill, Bradford, BD2 — £230,000 • 3 bed • 1 bath • 869 ft²






















































