Compact, modern two-bedroom in a quiet cul-de-sac—ideal for first-time buyers or investors.
Two double bedrooms with well-proportioned layouts
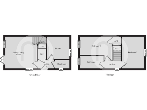
A well-presented two-bedroom semi-detached home tucked in a quiet cul-de-sac in the sought-after village of Bocking. The layout suits first-time buyers or landlords: entrance hall, ground-floor cloakroom, kitchen, double-aspect living/dining room and two double bedrooms upstairs with a family bathroom. The property benefits from modern build standards (post-2007), double glazing and mains gas central heating.
Outside is an attractive, landscaped rear garden, private driveway and single garage — useful for parking and storage in a location where off-street space is valued. The small plot and compact footprint make the house easy to maintain and attractive to buyers seeking low-upkeep living or a straightforward rental investment.
Notable downsides are the overall small size (approx. 603 sq ft) and limited outdoor/plot area compared with larger family homes. The accommodation will suit couples, small families or investors rather than those needing extensive living space. Local services include good primary schools nearby and reliable transport links; the area is classified as ageing urban communities with average crime and average deprivation indicators.
In short: a modern, low-maintenance starter home or buy-to-let in a peaceful cul-de-sac, offering immediate move-in condition with predictable running costs and clear scope for modest cosmetic updating if desired.
3 bedroom semi-detached house for sale in Ashpole Road, Braintree, CM7 — £325,000 • 3 bed • 1 bath • 926 ft²
4 bedroom link detached house for sale in Dyers Mead, Braintree, CM7 — £475,000 • 4 bed • 2 bath • 1443 ft²
2 bedroom semi-detached house for sale in Church Street, Braintree, CM7 — £255,000 • 2 bed • 1 bath • 686 ft²
5 bedroom town house for sale in Peter Taylor Avenue, Braintree, Essex, CM7 5GD, CM7 — £425,000 • 5 bed • 2 bath • 1389 ft²
2 bedroom semi-detached house for sale in Church Street, Braintree, CM7 — £220,000 • 2 bed • 1 bath • 485 ft²
3 bedroom detached house for sale in Chantry Close, Braintree, CM7 — £350,000 • 3 bed • 2 bath • 734 ft²














































































































