Ideal starter home near Gravesend transport links.
Chain free ground-floor maisonette with private entrance
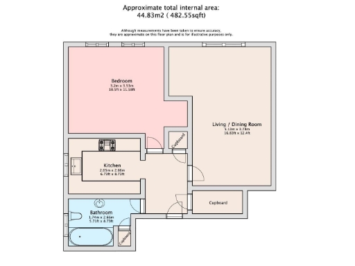
This chain-free ground-floor maisonette offers practical, low-maintenance living for first-time buyers or buy-to-let investors. The layout includes a spacious lounge, separate kitchen, a double bedroom and a modern bathroom across about 482 sq ft, with its own private entrance and small garden.
The lease length is healthy at 118 years and the property is offered with a service charge of approximately £1,140 per year. It sits in a well-connected spot with easy road access to the A2/M2 and regular rail services from nearby Gravesend, making commuting to London straightforward.
The property is dated in parts — 1970s-style living room decor, weatherboard cladding to the exterior and general maintenance needs on the façade and garden are apparent. Double glazing is fitted but the install date is unknown. Crime in the immediate area is above average, which may concern some buyers or affect rental yields.
Overall this maisonette represents a low-entry purchase with clear upside for cosmetic refurbishment and rental use. Buyers should budget for updating and ongoing maintenance while benefiting from long lease length, low council tax and strong transport links.
1 bedroom ground floor maisonette for sale in Mungo Park Road, Gravesend, Kent, DA12 — £180,000 • 1 bed • 1 bath • 389 ft²
1 bedroom ground floor maisonette for sale in Old Road West, Gravesend, Kent, DA11 — £170,000 • 1 bed • 1 bath • 571 ft²
1 bedroom maisonette for sale in Damigos Road, Gravesend, DA12 — £170,000 • 1 bed • 1 bath • 474 ft²
1 bedroom ground floor maisonette for sale in Maypole Road, Gravesend, Kent, DA12 — £180,000 • 1 bed • 1 bath • 539 ft²
2 bedroom maisonette for sale in St. Marks Avenue, Northfleet, Gravesend, Kent, DA11 — £160,000 • 2 bed • 1 bath • 431 ft²
2 bedroom maisonette for sale in St. Marks Avenue, Gravesend, DA11 — £180,000 • 2 bed • 1 bath • 487 ft²






































