Quiet garden-facing flat close to shops and station, ideal for easy retirement living.
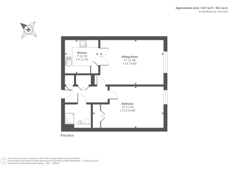
Refurbished one-bedroom, approximately 627 sq ft
This recently refurbished one-bedroom retirement apartment sits on the first-floor of a well-kept development in Sunningdale, quietly overlooking mature communal gardens. The layout is traditional and generous for a one-bed, offering about 627 sq ft of living space, a contemporary shower room and a compact modern kitchen finished with laminate flooring and practical fittings.
Designed for easy, low-maintenance living, the flat includes underground garage parking and double glazing. It is extremely convenient for everyday needs — local shops are 0.1 miles away and Sunningdale station is around 0.2 miles, making trips into nearby towns straightforward. The area is very affluent and popular with established professionals and retirees seeking quiet comfort close to amenities.
Practical considerations are clear and should be weighed: heating is by electric storage heaters, broadband speeds are average, and council tax is above average. The property is leasehold with approximately a century left (documents show 98–102 years remaining). These facts make the flat best suited to someone seeking a ready-to-move-in retirement home rather than a long-term family purchase.
Overall, the apartment offers turn-key comfort in a desirable, convenient location with communal green space and secure parking — a sensible choice for a retired buyer prioritising location, low upkeep and ready-made accommodation.
2 bedroom flat for sale in London Road, Sunningdale, SL5 — £400,000 • 2 bed • 2 bath • 1173 ft²
1 bedroom property for sale in London Road, Ascot, SL5 — £269,000 • 1 bed • 1 bath • 617 ft²
1 bedroom retirement property for sale in Clarefield Court, Ascot, SL5 — £250,000 • 1 bed • 1 bath • 645 ft²
1 bedroom retirement property for sale in St Christophers Gardens, Ascot, Berkshire SL5 8LZ, SL5 — £145,000 • 1 bed • 1 bath • 498 ft²
1 bedroom retirement property for sale in Clarefield Court, Ascot, SL5 — £225,000 • 1 bed • 1 bath • 667 ft²
2 bedroom flat for sale in Sunningdale, Berkshire, SL5 — £250,000 • 2 bed • 1 bath • 655 ft²






































