Remodelled single-storey home with separate lodge, gardens and stunning coastal park views.
Approximately 2 acres of landscaped gardens with meandering stream and pond
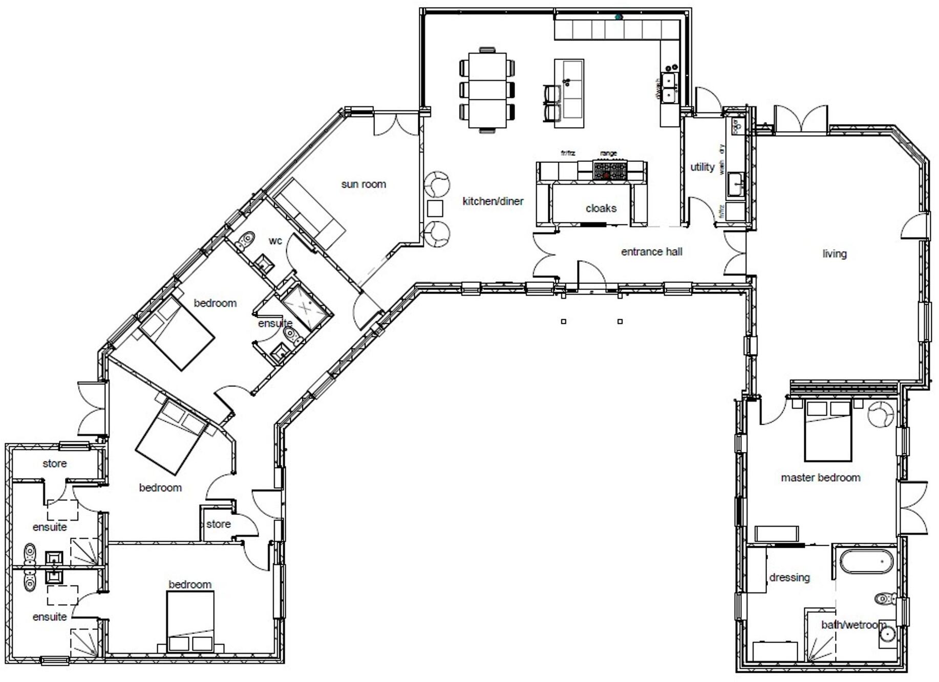
Set within c.2 acres of landscaped grounds in the Pembrokeshire Coast National Park, Rhydyfferm is a newly remodelled, single-storey detached home designed for relaxed rural living. The main horse-shoe plan houses four bedrooms and four bathrooms around a sweeping central hallway, plus a standout kitchen/dining/social hub with wrap-around bi-fold doors, skylight and granite surfaces that open to generous terrace seating and valley views. A separate three‑bedroom Dream Lodge offers independent overflow accommodation with its own balcony.
Practical efficiency features include PV solar panels, underfloor heating with zoned controls, a tech room for services and a detached workshop. The property also includes a striking 20ft geodesic dome for hot-tub use, extra dining or hospitality; large gated driveway and ample parking; and established gardens with winding paths, stream, footbridge and pond.
Important considerations: the main heating is electric (storage heaters) despite underfloor heating being fitted; the EPC is rated E; council tax is Band G which is quite expensive. The home sits in a very rural, remoter hamlet with no mobile signal and limited immediate local services — broadband is available (reported 40Mb/s). Buyers should note the property was constructed around 1996–2002 and, while comprehensively remodelled, some elements (EPC) may still benefit from further energy upgrades.
2 bedroom detached house for sale in Newport, Pembrokeshire, SA42 — £650,000 • 2 bed • 3 bath • 1734 ft²
4 bedroom detached house for sale in Willowcot, Talbenny, Haverfordwest, SA62 — £675,000 • 4 bed • 2 bath • 8757 ft²
4 bedroom detached house for sale in Hasguard, Haverfordwest, Pembrokeshire, SA62 — £475,000 • 4 bed • 2 bath • 1647 ft²
7 bedroom detached house for sale in Gower Villa Lane, Clynderwen, SA66 — £975,000 • 7 bed • 3 bath • 3444 ft²
4 bedroom house for sale in Ty'r Dderwen Ddu, Glynarthen, Llandysul, SA44 — £575,000 • 4 bed • 2 bath • 2325 ft²
4 bedroom house for sale in Yr Ydlan, Moylegrove, Cardigan, SA43 — £580,000 • 4 bed • 2 bath














































































































































































































































































































































