IP33 2BJ - 2 bedroom terraced house for sale in Southgate Street, Bury…

View on Property Piper

2 bedroom terraced house for sale in Southgate Street, Bury St Edmunds, IP33

Summary - 75 SOUTHGATE STREET BURY ST EDMUNDS IP33 2BJ

2 bed 2 bath Terraced

Refurbished, chain-free Victorian terrace with en suite, cellar room and south garden close to town.
Chain free freehold Victorian mid-terrace, newly refurbished throughout
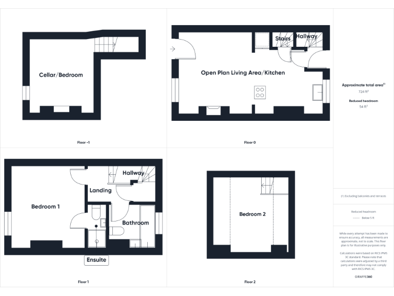
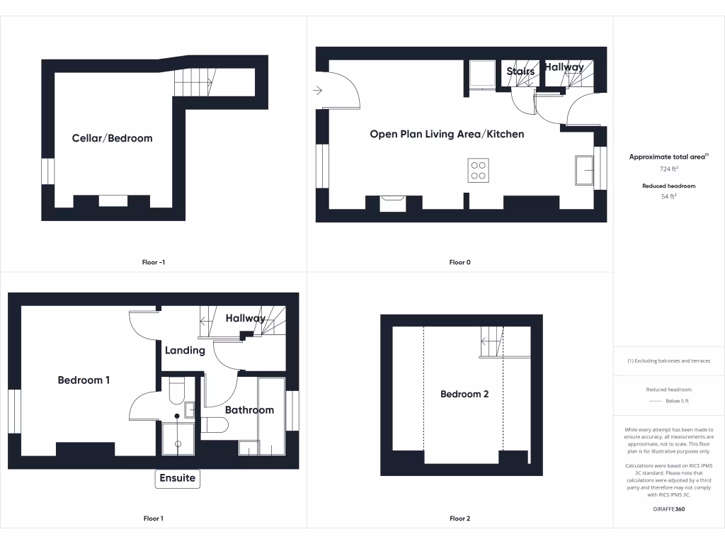
This newly refurbished Victorian mid-terrace balances period charm with contemporary convenience. The home is arranged over four levels and includes a light open-plan kitchen/diner, a converted lower-ground cellar suitable as a bedroom or home office, and a south-facing garden for afternoon sun. New windows and doors improve comfort and reduce drafts compared with the original fittings.

The principal bedroom on the first floor benefits from a refitted en suite, while a second upstairs bedroom offers good floor area but reduced head height at the eaves — best suited for occasional use or as a guest/bedroom space. The property is chain free and offered as freehold, making it straightforward for buyers wanting a quick move.

Practical considerations: the house has solid brick walls with no assumed cavity insulation and an EPC rating of D, so further insulation or energy upgrades could be considered to improve efficiency. The plot is small and garden space is compact but south-facing, providing reliable sunlight for seating or container planting. The converted cellar has an escape window and is versatile, but buyers should note lower-ground conditions versus full-height rooms.

Positioned minutes from Bury St Edmunds town centre, hospital, Abbey Gardens and good schools, the house suits professionals, couples and small families who value town access and a character property ready to occupy. The property is offered vacant on completion and has fast broadband and excellent mobile signal for home working.

Property Details

Image Descriptions

Floorplan Description

Rooms

Textual Property Features

Target Audience

AI Tags

Detected Visual Features

EPC Details

Nearby Schools

Nearest Bars And Restaurants

,,,,}

Nearest General Shops

,,}

Nearest Grocery shops

,,}

Nearest Supermarkets

,,}

Nearest Religious buildings

,,}

Nearest Medical buildings

,,,}

Nearest Leisure Facilities

,,,,}

Nearest Tourist attractions

,,}

Nearest Train stations

,,,,}

Nearest Bus stations and stops

,,,,}

Nearest Hotels

,,}

Tags

Local Market Stats

AirBnB Data

Similar Properties

Meta

High Res Images

Compatible Images

Low res Images

Thumbnails

Raw Images

High Res Floorplan Images

Compatible Floorplan Images

Low res Floorplan Images

FloorplanImages Thumbnail

Raw Floorplan Images