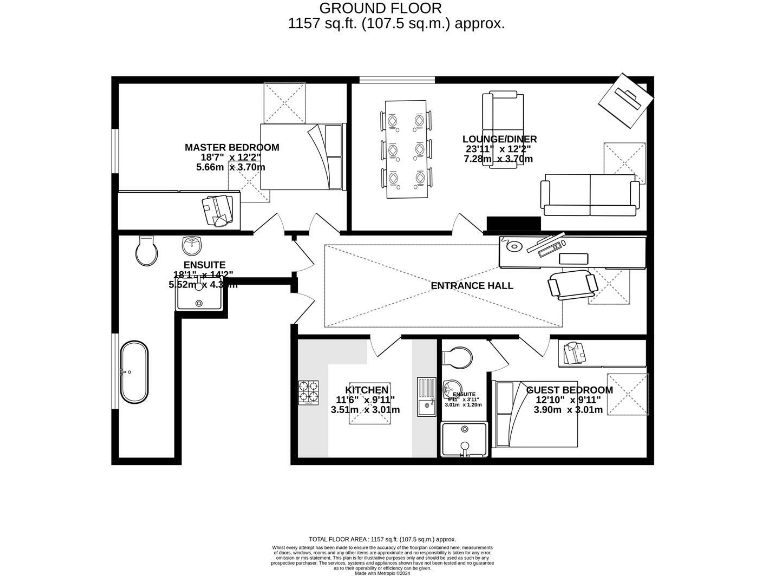
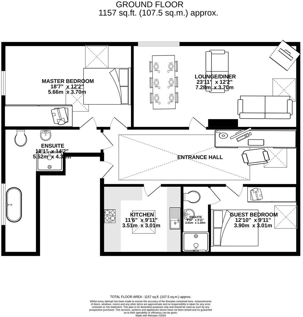
**Penthouse Apartment Features:**
- Two double bedrooms, each with ensuite bathrooms
- Located in a character building in the sought-after Branksome Park area
- Large entrance hall and spacious lounge/dining area
- Fully fitted kitchen, garage, and allocated parking
- Set within well-manicured communal grounds
- High-quality double glazing and mains gas heating
- Close proximity to award-winning beaches and local amenities
This exquisite penthouse apartment offers the perfect blend of contemporary living in a historic setting. Spread across 1,157 square feet, the spacious interior features a bright entrance hall with a skylight leading to a generous lounge and dining space. Both double bedrooms come with their own ensuite facilities, ensuring privacy and comfort.
Nestled in the affluent Branksome Park area, this property is just moments from the stunning Branksome Chine beach and the prestigious Sandbanks Peninsula. Enjoy convenient access to eclectic shops, fine dining, and excellent transport links connecting you to Bournemouth and Poole town centers, as well as easy commutes to London and Southampton.
While the property is in good condition, potential buyers may want to personalize it with minor updates, offering a perfect opportunity for customization. This penthouse represents a unique chance for discerning buyers to secure a prime residence in one of the area’s most desirable neighborhoods—don’t miss out!
4 bedroom penthouse for sale in 48 Western Road, Branksome Park, Poole, BH13 — £925,000 • 4 bed • 3 bath • 2141 ft²
3 bedroom apartment for sale in Tower Road, BRANKSOME PARK, BH13 — £650,000 • 3 bed • 3 bath • 1556 ft²
2 bedroom penthouse for sale in Tower Road, Poole, Dorset, BH13 — £650,000 • 2 bed • 2 bath • 1106 ft²
3 bedroom apartment for sale in Balcombe Road, Branksome Park, BH13 — £600,000 • 3 bed • 2 bath • 1345 ft²
3 bedroom apartment for sale in Dover Close, Branksome Park, Poole, BH13 — £875,000 • 3 bed • 2 bath • 1502 ft²
2 bedroom apartment for sale in Gleneagles, 19 The Avenue, Branksome Park, Poole, BH13 — £297,000 • 2 bed • 1 bath • 834 ft²






































