BD10 0DW - 5 bedroom detached house for sale in Brompton Drive, Apperl…

View on Property Piper

5 bedroom detached house for sale in Brompton Drive, Apperley Bridge, BD10

Summary - 33, Brompton Drive BD10 0DW

5 bed 3 bath Detached

**Key Features:**
- Stunning five-bedroom detached family home
- Spacious open-plan living and kitchen area
- Master suite with en-suite shower room
- Large enclosed rear garden, perfect for entertaining
- Double garage and parking for up to six cars
- Excellent proximity to schools, amenities, and scenic walks

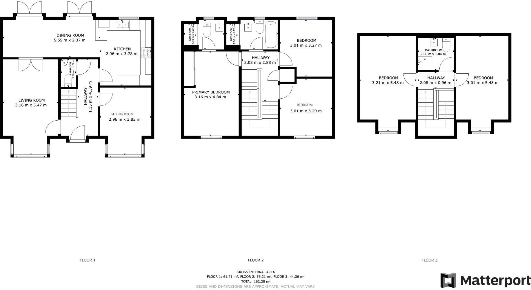
Experience modern family living in this exceptional five-bedroom detached home, elegantly designed across three spacious floors. The property welcomes you with a bright and airy hallway leading to an expansive open-plan living area, seamlessly connecting to a contemporary kitchen and dining space ideal for family gatherings. The master suite boasts fitted wardrobes and a luxurious en-suite, while two additional bedrooms on the first floor provide versatility for family or guests. The second floor offers two more double bedrooms and a well-appointed family bathroom.

Set on one of the largest plots in the estate, the oversized rear garden is perfect for outdoor entertaining, and the double garage along with a vast driveway allows for ample off-street parking. Nestled in a desirable neighborhood with access to parks, the Leeds & Liverpool Canal, and major transport routes to Leeds and Bradford, this home is perfect for families seeking comfort and convenience. While the local area features above-average crime rates, the strong community and quality of life offered here make it a worthy consideration. Don't miss your chance to secure this family haven with fantastic potential—schedule a viewing today!

Property Details

Brochure Descriptions

Image Descriptions

Floorplan Description

Rooms

Textual Property Features

Detected Visual Features

EPC Details

Nearby Schools

Nearest Bars And Restaurants

,,,,}

Nearest General Shops

,,}

Nearest Grocery shops

,,}

Nearest Supermarkets

,,}

Nearest Religious buildings

,,}

Nearest Medical buildings

,,,}

Nearest Airports

}

Nearest Leisure Facilities

,,,,}

Nearest Tourist attractions

,,}

Nearest Train stations

,,,,}

Nearest Bus stations and stops

,,,,}

Nearest Hotels

,,}

Tags

Local Market Stats

AirBnB Data

Meta

High Res Images

Compatible Images

Low res Images

Thumbnails

Raw Images

High Res Floorplan Images

Compatible Floorplan Images

Low res Floorplan Images

FloorplanImages Thumbnail

Raw Floorplan Images