Ready-to-move-in family home with flexible office space and garden.
Newly renovated throughout with engineered oak flooring
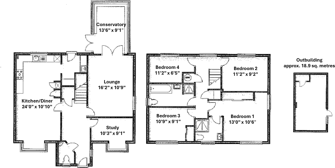
Light-filled and thoughtfully refitted, this four-bedroom detached home suits a growing family seeking move-in readiness in a quiet village setting. Finished with engineered oak flooring and upgraded kitchen appliances, the house offers a contemporary feel throughout and practical spaces such as a utility room, conservatory and study.
The former garage has been converted into an office/studio, creating a flexible workspace or gym away from the main living areas. Outside there is a paved terrace, a tidy lawn with established borders, and a brick-paved driveway with space for multiple cars plus an electric vehicle charging point.
Location supports family life: local shops, a good primary school and a mainline station with commuter trains make everyday living straightforward. Practical strengths include fast broadband, excellent mobile signal and gas central heating. Buyers should note the property’s overall internal size is relatively small for a four-bedroom house (about 1,060 sq ft), and while the finish is recent, the plot and layout are best suited to those who prioritise convenience over extensive living-space volume.
The local area is classified as comfortable but with some measures of deprivation; crime levels are average. These factors are worth considering alongside the home’s ready condition and convenient village amenities when deciding if this is the right next move.
4 bedroom detached house for sale in Ramsden Way, Marden, Tonbridge, TN12 — £520,000 • 4 bed • 2 bath • 1267 ft²
4 bedroom detached house for sale in Mayes Road, Marden, TN12 — £550,000 • 4 bed • 2 bath • 1550 ft²
4 bedroom detached house for sale in Seymour Drive, Marden, TN12 — £625,000 • 4 bed • 3 bath • 871 ft²
4 bedroom detached house for sale in Heasman Close, Tonbridge, TN12 — £600,000 • 4 bed • 2 bath • 1535 ft²
3 bedroom detached house for sale in Maidstone Road, Marden, Tonbridge, TN12 9AB, TN12 — £550,000 • 3 bed • 2 bath • 1298 ft²
5 bedroom detached house for sale in Within Walking Distance Of Marden Station, TN12 — £650,000 • 5 bed • 3 bath • 1746 ft²






























































































