Easy, low-maintenance retirement living with extensive on-site leisure.
Brand-new 40'x20' park home, fully furnished and pet friendly
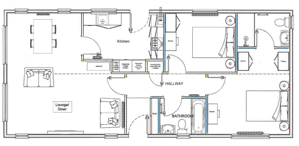
Two double bedrooms, master with ensuite and dressing area
Open-plan living and modern farmhouse-style kitchen
Access to heated outdoor pool, restaurant, shop, fishing lakes
Gated, small 25-home development with woodland and lakeside setting
Site fee ~£264/month; annual service charge ~£3,168
Virtual freehold/ground-lease — typically not mortgageable, seek legal advice
Council Tax Band A; developer images may differ from final home
This brand-new 40'x20' park home sits within a private, gated residential extension of a leisure park, created exclusively for the over-50s. The two-double-bedroom layout is open-plan with a modern farmhouse kitchen, ensuite to the master and a fitted second bathroom. The home is sold fully furnished and is pet friendly, with off-street parking for two cars and a very large plot feel on site.
Residents gain immediate access to extensive leisure amenities including a heated outdoor pool, restaurant, café, convenience shop, fishing lakes, tennis courts and communal recreation facilities. The development is small and private (about 25 homes), set amid woodland and lakes with easy road links to Northampton, the A43 and M1, plus a bus stop at the park entrance.
Important practical points: the home sits on a virtual freehold/ground-lease arrangement typical of park homes. Site fees are noted (around £264/month) and an annual service charge is listed at approximately £3,168. Park homes on this tenure are generally not mortgageable — buyers should consult a solicitor and check the Mobile Homes Act 2013 and park rules before committing.
This property will suit buyers seeking low-maintenance, community-centred retirement living with leisure facilities on the doorstep. It offers contemporary comfort and instant move-in convenience, balanced against ongoing site fees, ground-lease considerations and the specific resale rules that apply to park-home living.
2 bedroom park home for sale in Overstone Lakes Residential Park, Ecton Lane, NN6 — £350,000 • 2 bed • 2 bath • 800 ft²
2 bedroom park home for sale in Overstone Lakes Residential Park, Ecton Lane, NN6 — £300,000 • 2 bed • 2 bath • 800 ft²
2 bedroom park home for sale in Overstone Lakes Residential Park, Ecton Lane, NN6 — £260,000 • 2 bed • 2 bath • 800 ft²
2 bedroom park home for sale in Overstone Lakes Residential Park, Ecton Lane, NN6 — £350,000 • 2 bed • 2 bath • 800 ft²
2 bedroom park home for sale in Castle Ashby Park, Grendon Road, Earls Barton, Northampton, NN6 — £225,000 • 2 bed • 2 bath • 900 ft²
2 bedroom park home for sale in 3 Rowan Close, Overstone Lakes, Sywell, NN6 0BD, NN6 — £160,000 • 2 bed • 1 bath • 716 ft²


















































