Chain-free two-bed with strong rental potential near shops and station.
- 10% estimated rent yield potential
- Chain-free freehold with Council Tax Band A
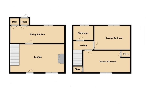
- Two double bedrooms and family bathroom
- Larger-than-average lounge with laminated floor
- Dining kitchen with fitted units and boiler
- Enclosed rear courtyard plus front paved garden
- Garage included for parking or storage
- Area recorded as very deprived; high crime rate
A compact, chain-free two-bedroom end-terrace offering clear buy-to-let potential or an affordable first home. The property sits close to Castle Dene Shopping Centre, local schools and Horden station, making it convenient for tenants or commuters.
The ground floor has a larger-than-average lounge and a rear dining kitchen with fitted cupboards and plumbing for appliances. Two double bedrooms and a family bathroom sit upstairs. Double glazing and mains gas central heating are already installed.
Outside there is a west-facing paved patio garden to the front and an enclosed gated rear courtyard with two storage outbuildings. A separate garage provides added storage or off-street parking.
Important negatives to note: the immediate area is classed as very deprived with a high crime rate, and the property shows signs of neglected curb appeal and will benefit from cosmetic updating. EPC rating D. Investors should factor in refurbishment costs against the advertised 10% rental-yield potential.
2 bedroom end of terrace house for sale in Seventh Street, Horden, County Durham, SR8 4JQ, SR8 — £29,950 • 2 bed • 1 bath • 894 ft²
2 bedroom end of terrace house for sale in Sixth Street, Horden, Peterlee, Durham, SR8 4JX, SR8 — £45,000 • 2 bed • 1 bath • 1012 ft²
2 bedroom end of terrace house for sale in Harrison Close, Peterlee, SR8 — £70,000 • 2 bed • 1 bath • 948 ft²
2 bedroom terraced house for sale in Wheatley Terrace, Wheatley Hill, County Durham, DH6 3RW, DH6 — £65,000 • 2 bed • 1 bath • 754 ft²
3 bedroom end of terrace house for sale in Burdon Place, Peterlee, County Durham, SR8 5QZ, SR8 — £85,000 • 3 bed • 1 bath • 808 ft²
2 bedroom terraced house for sale in Seventh Street, Peterlee, SR8 — £45,000 • 2 bed • 1 bath • 721 ft²














































