TQ2 8PX - 4 bed spacious family semi in Torbay, TQ2 8PX

View on Property Piper

4 bedroom semi-detached house for sale in Padacre Road, Watcombe Park, Torquay, Devon, TQ2

Summary - 51 Padacre Road, TORQUAY TQ2 8PX

4 bed 3 bath Semi-Detached

Traditional four-bed home with strong parking and private garden near top schools.
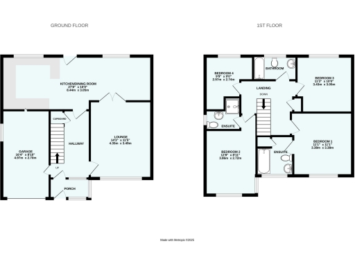
- Four bedrooms and three bathrooms across approximately 1,013 sq ft
- Brick-paved driveway with parking for two plus motorhome space
- Private, low-maintenance rear garden suitable for family use
- Built c.1967–1975; may benefit from gradual modernisation
- Double glazing present; install date unknown (consider inspection)
- Mains gas boiler and radiators for central heating
- Freehold tenure, moderate council tax, no flood risk
- Affluent area with very low crime, fast broadband and excellent signal
A well-presented four-bedroom semi-detached house in sought-after Watcombe Park, offering practical family living on a decent plot. The mid-20th-century home sits on a brick-paved driveway with off-street parking for two vehicles and space for a motorhome, and a private, low-maintenance rear garden for children and summer entertaining. Heating is gas-fired via a boiler and radiators; glazing is double but install date is unknown, so buyers should check for replacement timings.

Internally the layout is traditional and family-friendly with approximately 1,013 sq ft across six main rooms, three bathrooms and usable reception space. The property appears well maintained and ready to occupy, set in an affluent neighbourhood with very low crime, fast broadband and excellent mobile signal — practical points for modern family life and remote working.

Practical considerations: the house dates from the late 1960s–1970s and, while well kept, may benefit from gradual modernisation to personal taste. Council tax is moderate and tenure is freehold, which supports long-term family ownership. There is no flooding risk recorded, and nearby schools include several rated Good and an Outstanding grammar school within reach.

This home will suit buyers seeking a comfortable, traditional family house in a quiet, established suburb of Torquay who value parking, outdoor privacy and good local amenities. Investors should note the area’s affluence and low crime, though returns will depend on any updates the buyer chooses to make.

Property Details

Brochure Descriptions

Image Descriptions

Floorplan Description

Rooms

Textual Property Features

Target Audience

AI Tags

Detected Visual Features

EPC Details

Nearby Schools

Nearest Bars And Restaurants

,,,,}

Nearest General Shops

,,}

Nearest Grocery shops

,,}

Nearest Supermarkets

,,}

Nearest Religious buildings

,,}

Nearest Medical buildings

,,,}

Nearest Airports

}

Nearest Leisure Facilities

,,,,}

Nearest Tourist attractions

,,}

Nearest Train stations

,,,,}

Nearest Bus stations and stops

,,,,}

Nearest Hotels

,,}

Tags

Local Market Stats

AirBnB Data

Similar Properties

Meta

High Res Images

Compatible Images

Low res Images

Thumbnails

Raw Images

High Res Floorplan Images

Compatible Floorplan Images

Low res Floorplan Images

FloorplanImages Thumbnail

Raw Floorplan Images