SM6 9AP - 1 bedroom maisonette for sale in Stafford Road, Wallington,…

View on Property Piper

1 bedroom maisonette for sale in Stafford Road, Wallington, Surrey, SM6

Summary - 83A STAFFORD ROAD WALLINGTON SM6 9AP

1 bed 1 bath Maisonette

**Standout Features:**
- Recently fitted kitchen and bathroom
- Spacious loft and balcony space
- Ideal central location near Wallington High Street and amenities
- Excellent transport links, a short walk to Wallington train station
- New renovation providing modern living environment

**Potential Concerns:**
- Leasehold property with a modest ground rent of £100
- Crime rates in the area are high
- Average-sized property with solid brick walls lacking insulation

This inviting first-floor maisonette, perfect for first-time buyers or investors, offers a fresh and modern lifestyle. Featuring a recently renovated kitchen and bathroom, along with spacious loft and balcony areas, this property is designed for comfort and convenience. Enjoy easy access to local amenities on Wallington High Street and excellent transportation options, ensuring that you are well connected to the surrounding area.

With an appealing square footage and a cozy double bedroom, this home suits both peaceful living and potential rental opportunities. Positioned in a vibrant neighborhood with good schools nearby, this property provides a unique chance to secure a central urban home at an attractive price of £240,000. Don't miss out on this exceptional opportunity to start your journey in a well-located, newly renovated space where you can comfortably envision your future.

Property Details

Image Descriptions

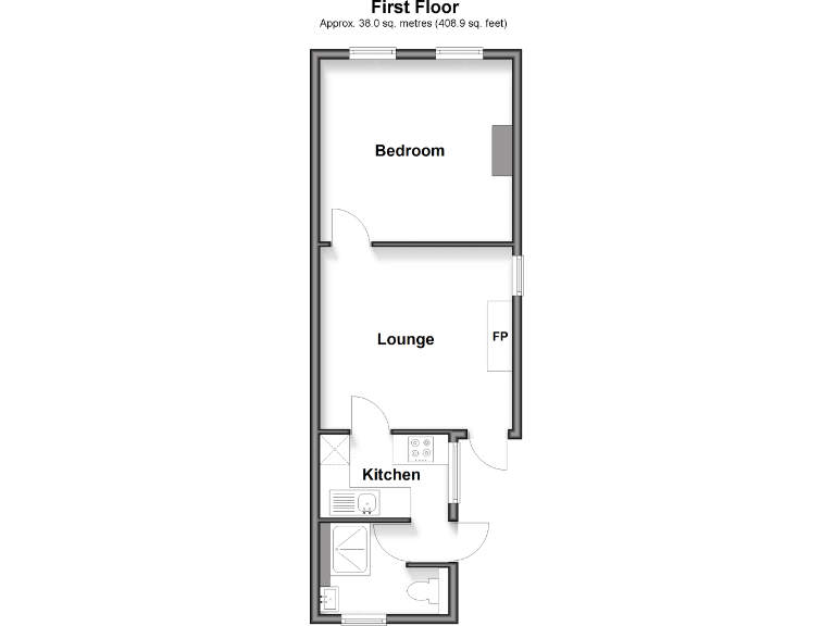
Floorplan Description

Rooms

Textual Property Features

Detected Visual Features

EPC Details

Nearby Schools

Nearest Bars And Restaurants

,,,,}

Nearest General Shops

,,}

Nearest Grocery shops

,,}

Nearest Supermarkets

,,}

Nearest Religious buildings

,,}

Nearest Medical buildings

,,,}

Nearest Airports

,,}

Nearest Leisure Facilities

,,,,}

Nearest Tourist attractions

,,}

Nearest Train stations

,,,,}

Nearest Bus stations and stops

,,,,}

Nearest Hotels

,,}

Tags

Local Market Stats

AirBnB Data

Similar Properties

Meta

High Res Images

Compatible Images

Low res Images

Thumbnails

Raw Images

High Res Floorplan Images

Compatible Floorplan Images

Low res Floorplan Images

FloorplanImages Thumbnail

Raw Floorplan Images