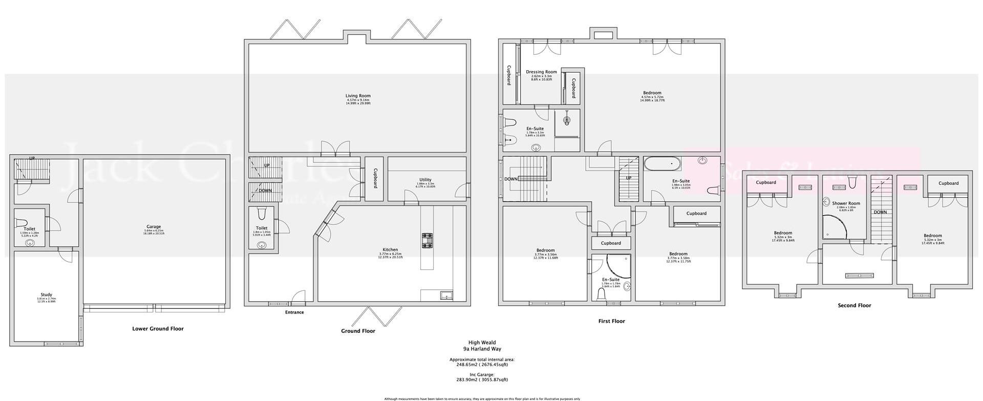
Five double bedrooms, three with ensuite bathrooms
A substantial detached family home arranged over four floors, this modern property delivers flexible living across roughly 4,380 sq ft. The heart of the house is a 30ft living/dining room with bifold doors to the landscaped rear garden, and a 20ft kitchen/breakfast room with balcony access — ideal for family entertaining and everyday life. Photovoltaic roof panels and underfloor heating reduce running costs and add contemporary comfort.
Five double bedrooms are arranged over the first and second floors, three with ensuite facilities; the principal suite benefits from a walk-through dressing room and a Juliette balcony. The lower ground floor includes a study/home office, cloakroom and internal access to a double garage designed for straightforward conversion to an annexe if required, offering long-term flexibility for multigenerational living or rental income.
Outside there is a large landscaped garden, paved terrace and driveway parking for multiple cars in addition to the double garage. The property sits in a sought-after Southborough/Bidborough location with excellent schools nearby and fast rail links to London from Tunbridge Wells and Tonbridge, making it well positioned for commuting families.
Practical points to note: council tax is described as quite expensive, and the property’s size and specification mean maintenance and running costs will be higher than average. The garage has conversion potential but would require planning and fit-out to create a self-contained space.
6 bedroom detached house for sale in Manor Fields, Southborough, Tunbridge Wells, Kent, TN4 — £1,175,000 • 6 bed • 4 bath • 3022 ft²
4 bedroom detached house for sale in Valley View, Tunbridge Wells, Kent, TN4 — £1,150,000 • 4 bed • 2 bath • 2547 ft²
5 bedroom detached house for sale in Forest Road, Tunbridge Wells, Kent, TN2 — £1,350,000 • 5 bed • 3 bath • 2483 ft²
5 bedroom detached house for sale in London Road, Southborough, TN4 — £1,350,000 • 5 bed • 3 bath • 3585 ft²
5 bedroom detached house for sale in Wybourne Rise, Tunbridge Wells, Kent, TN2 — £975,000 • 5 bed • 2 bath • 2617 ft²
5 bedroom detached house for sale in Frank Rosier Way, Tunbridge Wells, TN2 — £1,100,000 • 5 bed • 4 bath • 2672 ft²


























































































































































































