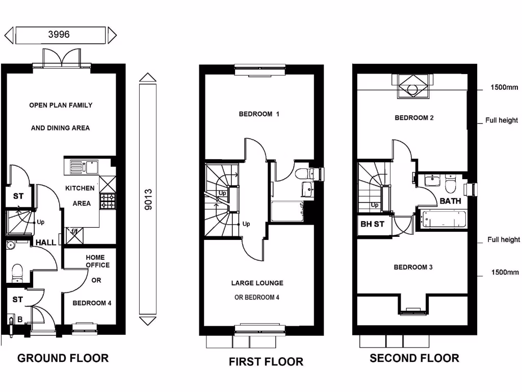
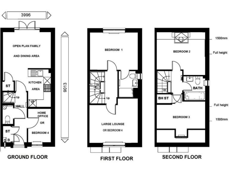
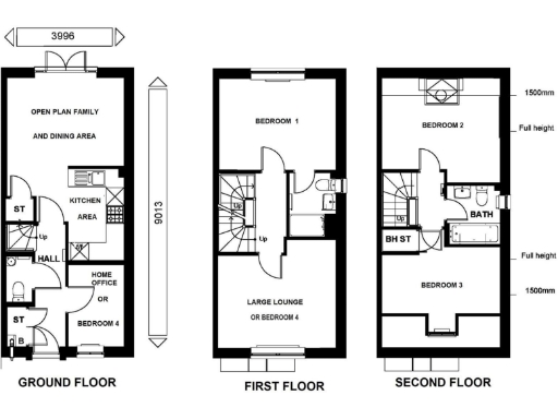
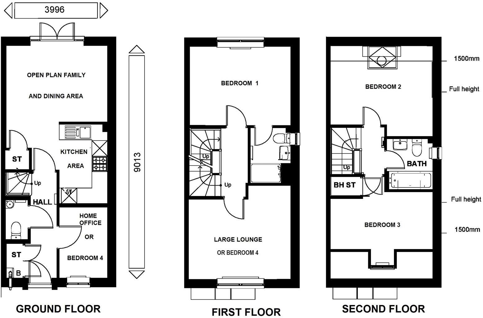
Four double bedrooms over three floors, flexible layout
A contemporary four-bedroom semi-detached home completed in 2022, offering flexible three-storey living for family life. The ground floor provides an open-plan kitchen/dining area with French doors to a fully landscaped, enclosed rear garden — a neat, low-maintenance outside space for al fresco dining and family play. There is also a useful downstairs cloakroom and a versatile room currently used as a home office that can serve as a fourth bedroom.
The first floor houses a separate lounge and the main bedroom with fitted wardrobes and an en-suite shower room. Two further double bedrooms and a family bathroom occupy the second floor, giving good separation between living and sleeping areas. Practical features include off-street parking for two cars, an electric vehicle charging point, fast broadband and excellent mobile signal.
This property sits in a very affluent, small-town setting with supermarkets, independent shops, weekly market, schools and direct rail links to Nottingham. The house is freehold and benefits from energy-efficient construction and modern fittings, making it move-in ready for families seeking convenience and low-maintenance living.
Notable drawbacks: the plot and gardens are modest in size, so outdoor space is limited compared with larger family homes. There is an annual development service charge of £60 and council tax is described as moderate. The property is average-sized overall, so buyers needing extensive space or large gardens should note these constraints.











































































































































































