**Standout Features:**
- Modern 4-bedroom mid-terraced townhouse in Saltram Meadow, Plymouth
- Dual aspect lounge with direct access to a landscaped rear garden
- Stylish kitchen/dining area with high-end AEG appliances and plenty of storage
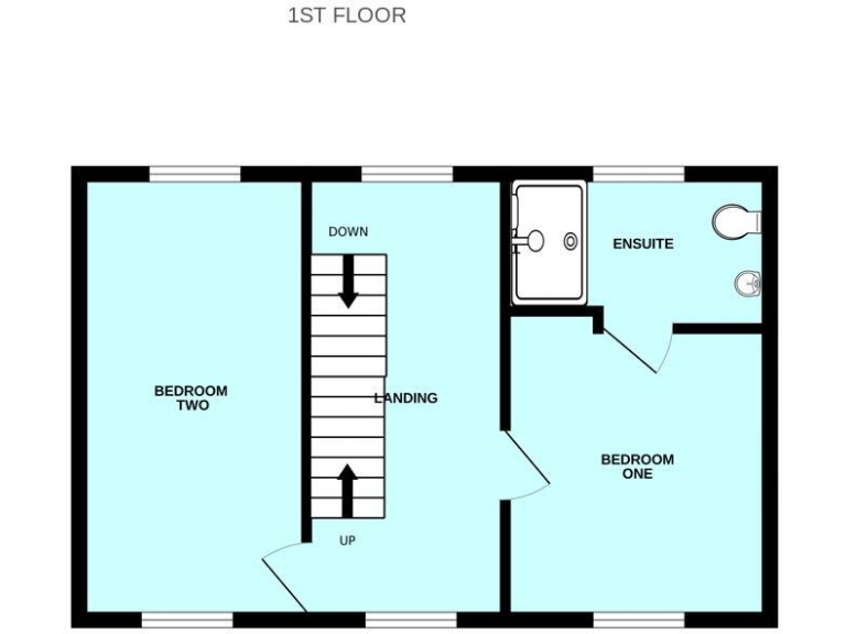
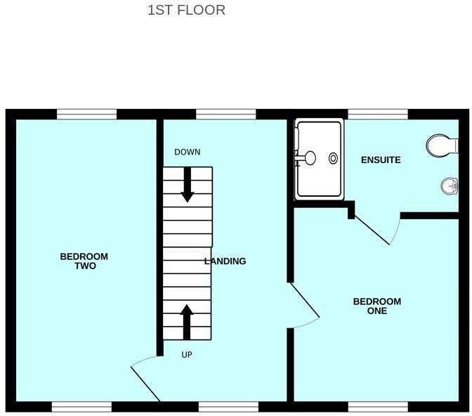
- Spacious landings and bedrooms, including a master with ensuite shower room
- Garage and driveway parking
- Energy-efficient double glazing and central heating
**Potential Concerns:**
- Management fee of approximately £186.09 per annum for communal area maintenance
Nestled in the desirable Saltram Meadow area, this beautifully presented 4-bedroom townhouse is a fantastic family home. Offering generous living spaces across three floors, it features a dual aspect lounge that seamlessly leads to an enclosed rear garden, perfect for both relaxation and entertaining. The stylish kitchen/dining room boasts top-of-the-line AEG appliances, making mealtime a pleasure.
Each of the four bedrooms is spacious, with the main bedroom enjoying its own ensuite, providing a private sanctuary. The property combines modern aesthetics with comfort, complete with a garage, driveway parking, and energy-efficient solutions. Close to local schools with good Ofsted ratings, this home also benefits from a very low crime rate and excellent broadband connectivity, making it ideal for families and young professionals alike.
Don’t miss your chance to own this exceptional property! With its blend of modern living, space, and vibrancy in a sought-after community, it’s the perfect canvas for your family's future. Act quickly—homes in this area don’t stay on the market for long!
 4 bedroom terraced house for sale in Coscombe Circus, Saltram Meadow, Plymouth, PL9 — £325,000 • 4 bed • 2 bath • 1214 ft²
 4 bedroom terraced house for sale in Coscombe Circus, Saltram Meadow, Plymouth, PL9 — £325,000 • 4 bed • 2 bath • 1214 ft² 4 bedroom detached house for sale in Saltram Meadow, Plymouth, PL9 — £350,000 • 4 bed • 2 bath • 1185 ft²
 4 bedroom detached house for sale in Saltram Meadow, Plymouth, PL9 — £350,000 • 4 bed • 2 bath • 1185 ft² 2 bedroom end of terrace house for sale in Saltram Meadow, Plymouth, PL9 — £220,000 • 2 bed • 1 bath • 646 ft²
 2 bedroom end of terrace house for sale in Saltram Meadow, Plymouth, PL9 — £220,000 • 2 bed • 1 bath • 646 ft² 4 bedroom terraced house for sale in Coscombe Circus, Plymouth, PL9 — £325,000 • 4 bed • 2 bath • 1116 ft²
 4 bedroom terraced house for sale in Coscombe Circus, Plymouth, PL9 — £325,000 • 4 bed • 2 bath • 1116 ft² 4 bedroom town house for sale in Ashbrook Street, Plymouth, PL9 — £310,000 • 4 bed • 2 bath
 4 bedroom town house for sale in Ashbrook Street, Plymouth, PL9 — £310,000 • 4 bed • 2 bath 3 bedroom end of terrace house for sale in Killerton Lane, Plymstock, PL9 — £260,000 • 3 bed • 3 bath • 813 ft²
 3 bedroom end of terrace house for sale in Killerton Lane, Plymstock, PL9 — £260,000 • 3 bed • 3 bath • 813 ft²






































































































