**Standout Features:**
- Spacious 5-bedroom detached family home in the sought-after Colinton district
- Elegant reception areas with abundant natural light and southerly views
- Beautifully maintained south-facing garden with stone terrace
- Well-appointed kitchen with utility room and pantry, plus multiple bathrooms
- Detached garage with ample off-street parking
- Located near excellent schools and community amenities
**Concise Summary:**
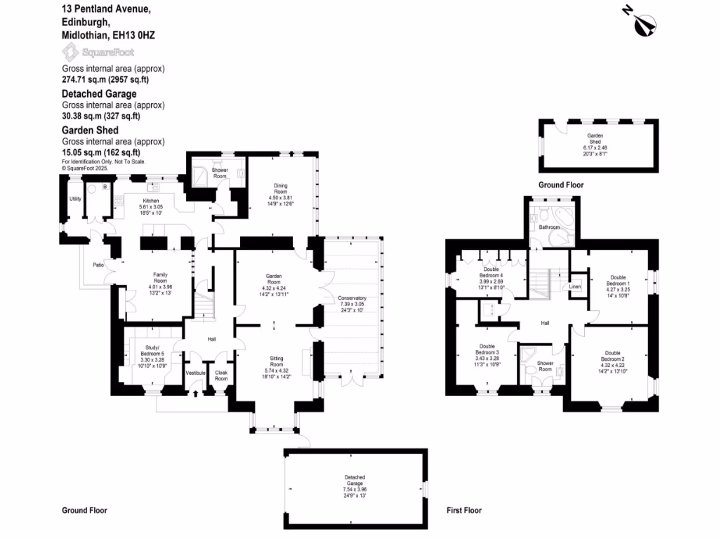
Nestled in the desirable Colinton Conservation Area, this lovely detached Edwardian family home offers an impressive 2,957 sq ft of light-filled living space set amidst a picturesque garden. The elegant ground floor boasts a magnificent double reception space with views of the Pentland Hills, complemented by a well-equipped kitchen that flows into a cozy family room. Off the kitchen, a utility room and shower room add to the practicality of family living. Venture upstairs to find four generously sized double bedrooms and a stylish shower room, with a large attic providing additional storage space.
The expansive, mature south-facing garden features delightful flower beds and a spacious lawn, perfect for family gatherings and children's activities. With the convenience of a detached garage and extra parking, you can effortlessly host guests. This charming home also ensures easy access to local amenities, schools, and scenic outdoor spaces along the Water of Leith. Though it presents a fantastic opportunity for families seeking comfort and community, do note that the property may require modern updates to fully realize its potential. Seize this chance for a tranquil haven in a vibrant location; homes like this don’t stay on the market for long.
5 bedroom detached house for sale in Colinton Road, Merchiston, Edinburgh, EH10 — £1,600,000 • 5 bed • 2 bath • 4095 ft²
5 bedroom detached house for sale in 6 Gillespie Road, Colinton, Edinburgh, EH13 0LL, EH13 — £1,050,000 • 5 bed • 3 bath • 2957 ft²
6 bedroom semi-detached house for sale in Hermitage Drive, Morningside, Edinburgh, EH10 — £1,500,000 • 6 bed • 2 bath • 3811 ft²
5 bedroom detached house for sale in 103 Woodfield Avenue, Colinton, Edinburgh, 0QR, EH13 — £665,000 • 5 bed • 3 bath • 2135 ft²
5 bedroom detached house for sale in 1 Redhall House Drive, Colinton, Edinburgh, EH14 1JE, EH14 — £1,395,000 • 5 bed • 4 bath • 3143 ft²
5 bedroom detached house for sale in 26 Burnbrae, EDINBURGH, EH12 8UB, EH12 — £575,000 • 5 bed • 3 bath • 2152 ft²














































































































