**Standout Features:**
- Expansive 256.61 acres of pasture land with excellent road frontage
- Substantial south-facing farmhouse offering 3,350 sq ft and five bedrooms
- Stunning views into Great Ash Combe and towards Winsford Hill
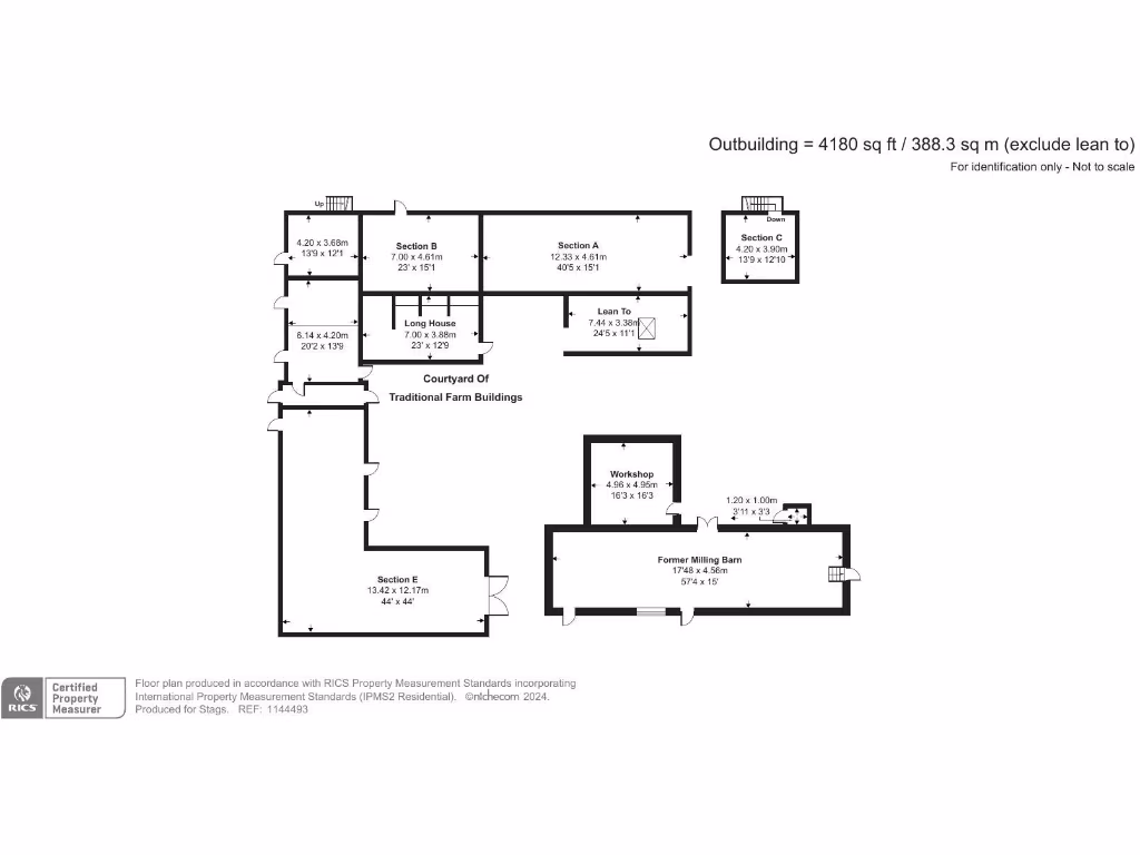
- Multiple traditional stone barns and modern farm buildings
- Established sporting farm, part of a renowned shoot with fishing rights on the River Exe
- Private and secluded setting within Exmoor National Park
**Potential Downsides:**
- Structural condition of outbuildings may require assessment
- Heating source is oil, with potential for maintenance
- Compliance of private drainage system is unknown
**Summary:**
Discover Great Ash Farm, an expansive rural estate situated in the heart of Exmoor National Park, offering breathtaking views of Winsford Hill and lush, rolling pastures. This impressive 5-bedroom farmhouse, with its classic stone construction under a slate roof, provides a comfortable family home with ample space for leisure and agricultural pursuits. Enjoy the sunroom’s panoramic views, and a traditional courtyard surrounded by versatile outbuildings that hold potential for various uses. The extensive 256.61 acres of land are perfect for livestock grazing, mowing, or even securing additional income through its established sporting rights and fishing access on the River Exe.
This ideal property is perfect for families looking for a tranquil rural lifestyle or investors seeking a unique agricultural opportunity. Don’t miss your chance to own a slice of paradise; such a large rural estate with sporting appeal is a rare find! Explore possibilities for renovations or extensions that could further enhance its value and charm.
5 bedroom detached house for sale in Winsford, TA24 — £3,250,000 • 5 bed • 2 bath • 3350 ft²
Land for sale in Aisholt, Bridgwater, TA5 — £2,750,000 • 8 bed • 4 bath • 5212 ft²
4 bedroom smallholding for sale in Nethercott Lane, Lydeard St. Lawrence, Taunton, Somerset, TA4 — £1,300,000 • 4 bed • 2 bath • 1699 ft²
4 bedroom farm house for sale in Nethercott Lane, Lydeard St. Lawrence, Taunton, Somerset, TA4 — £2,400,000 • 4 bed • 2 bath • 985 ft²
4 bedroom detached house for sale in Burrow, Wootton Courtenay, Minehead, TA24 — £1,400,000 • 4 bed • 2 bath • 6176 ft²
Land for sale in Wembworthy, Chulmleigh, EX18 — £4,500,000 • 4 bed • 2 bath • 3553 ft²


























































































