**Standout Features:**
- 3 spacious double bedrooms, master with en-suite
- Generous living areas with modern finishes
- Detached garage with electricity and ample driveway parking
- Beautiful rear garden with mature trees and patio area
- Prime location near Ardneil Beach and West Kilbride golf course
**Potential Downsides:**
- Council tax is classified as expensive
- Area classified as deprived
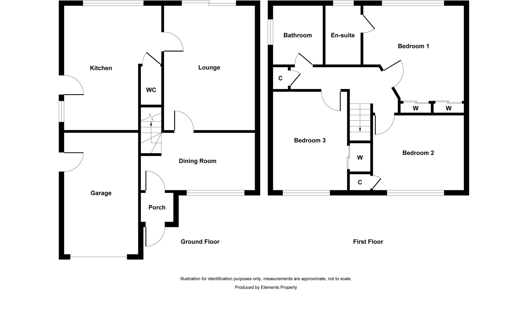
Discover your new home in this delightful 3-bedroom detached house nestled in the coastal village of Seamill, just a stone's throw from the beach and the renowned West Kilbride golf course. This modern family villa features a well-designed layout with a welcoming entrance porch, a bright lounge with patio doors opening to an inviting decked garden space, and a stylish dining kitchen that offers easy access to the side garden. Upstairs, you'll find three double bedrooms that provide ample accommodation, including a master suite equipped with a private en-suite shower room.
Set on a generous plot with a well-maintained front garden and driveway for several vehicles, this home combines comfort with practicality. The expansive rear garden, complete with mature fruit trees, offers a serene retreat for outdoor celebrations or family gatherings. Enjoy quick access to local amenities and excellent transport links to Glasgow City Center and beyond. While this home offers an idyllic lifestyle, potential buyers should be aware of the higher council tax and the area's classification. This property is a gem for anyone seeking a family-friendly environment, a coastal lifestyle, and room for personal touches. Don’t miss this opportunity; homes in this prime location are rarely available for long!
3 bedroom detached villa for sale in 14 Caora Way, Seamill, KA23 9FE, KA23 — £299,000 • 3 bed • 3 bath • 1249 ft²
3 bedroom detached house for sale in Ailsa View, West Kilbride, North Ayrshire, KA23 — £290,000 • 3 bed • 1 bath • 1177 ft²
4 bedroom flat for sale in 1b Ardrossan Road, Seamill, West Kilbride, KA23 9LZ, KA23 — £290,000 • 4 bed • 3 bath
3 bedroom detached house for sale in Portencross Road, West Kilbride, KA23 — £400,000 • 3 bed • 2 bath • 1736 ft²
4 bedroom detached house for sale in Miller Avenue, Fairlie, Largs, KA29 0EJ, KA29 — £319,000 • 4 bed • 3 bath • 1378 ft²
3 bedroom detached villa for sale in 15 Avondale Road, West Kilbride, KA23 9BJ, KA23 — £230,000 • 3 bed • 1 bath • 926 ft²






















































































