BS20 7PL - 1 bedroom flat for sale in Kittiwake Drive, Portishead, BS20

View on Property Piper

1 bedroom flat for sale in Kittiwake Drive, Portishead, BS20

Summary - 61 Kittiwake Drive,Portishead,BRISTOL,BS20 7PL BS20 7PL

1 bed 1 bath Flat

Bright one-bedroom flat with balcony, parking and coastal views — ideal low-maintenance living..
Panoramic Severn Estuary views from first-floor balcony
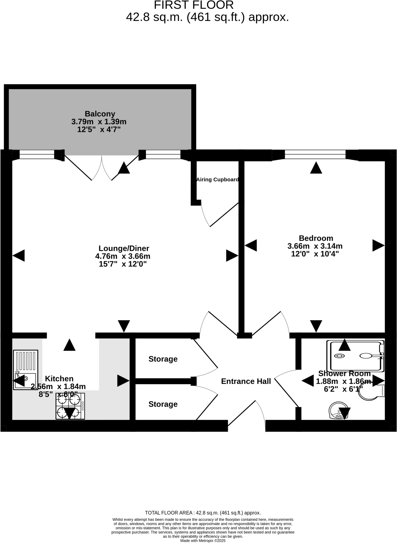
Light-filled, first-floor apartment with a broad balcony and uninterrupted views over the Severn Estuary. The open-plan living space flows to the balcony through French doors, creating a low-maintenance, lock-and-leave feel well suited to downsizers or those wanting a peaceful coastal base. The kitchen has plentiful storage, built-in oven and hob, and room for additional appliances.

The bedroom is a generous size with estuary views; there is a shower room and two useful storage cupboards off the hall. The property includes an allocated off-street parking space and is offered with no onward chain, simplifying purchase and move-in.

Practical points to note: the home is leasehold (material information supplied by the owner), EPC is listed as TBC, and council tax is Band C. The local area is affluent and comfortable with good schools nearby, but recorded local crime levels are above average — worth considering for security-sensitive buyers.

Overall this is a well-presented seaside apartment that delivers easy living, memorable water views and convenient access to the marina, nature reserve and town amenities. It will suit someone seeking a manageable, scenic home rather than a project property.

Property Details

Image Descriptions

Floorplan Description

Rooms

Textual Property Features

Target Audience

AI Tags

Detected Visual Features

Nearby Schools

Nearest Bars And Restaurants

,,,,}

Nearest General Shops

,,}

Nearest Grocery shops

,,}

Nearest Supermarkets

,,}

Nearest Religious buildings

,,}

Nearest Medical buildings

,,,}

Nearest Airports

}

Nearest Leisure Facilities

,,,,}

Nearest Tourist attractions

,,}

Nearest Train stations

,,,,}

Nearest Bus stations and stops

,,,,}

Nearest Hotels

,,}

Tags

Local Market Stats

AirBnB Data

Similar Properties

Meta

High Res Images

Compatible Images

Low res Images

Thumbnails

Raw Images

High Res Floorplan Images

Compatible Floorplan Images

Low res Floorplan Images

FloorplanImages Thumbnail

Raw Floorplan Images