LA4 5EQ - Commercial property for sale in Queen Street, Morecambe, LA4

View on Property Piper

Commercial property for sale in Queen Street, Morecambe, LA4

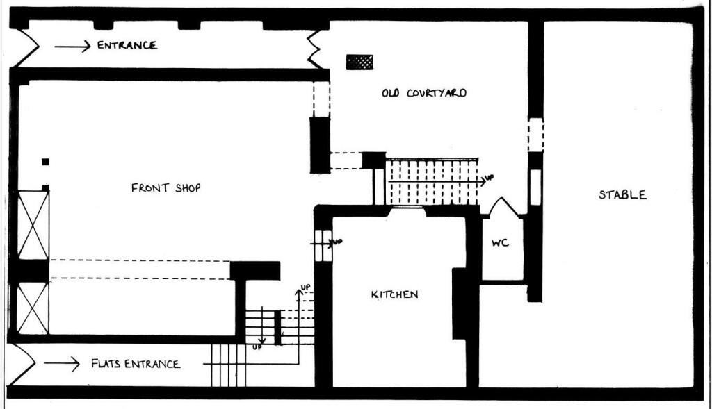
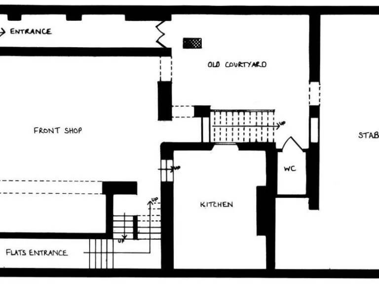
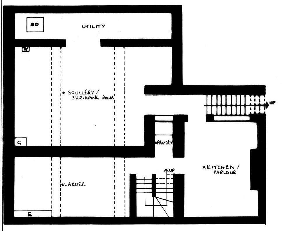
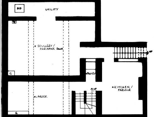
Summary - BASEMENT AND GROUND FLOOR, 13, QUEEN STREET LA4 5EQ

4 bed 2 bath Commercial Property

**Standout Features:**
- Prime town center location, just off the promenade
- Currently operating as a café, generating £1,000/month in rental income
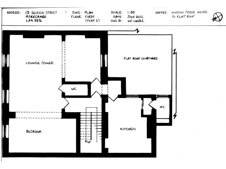
- Potential to convert first-floor storage into two separate flats
- Newly refurbished 3-bedroom maisonette with modern finishes
- Proximity to the upcoming Eden Project, enhancing investment appeal
- Freehold property with favorable Council Tax Band A

**Summary:**
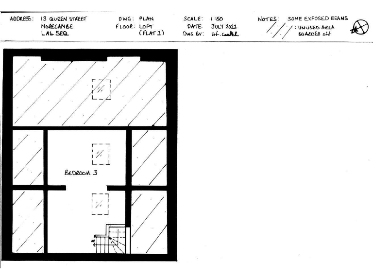
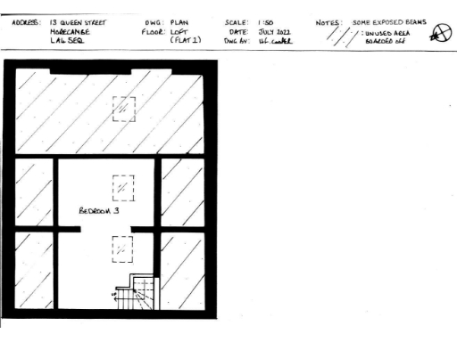
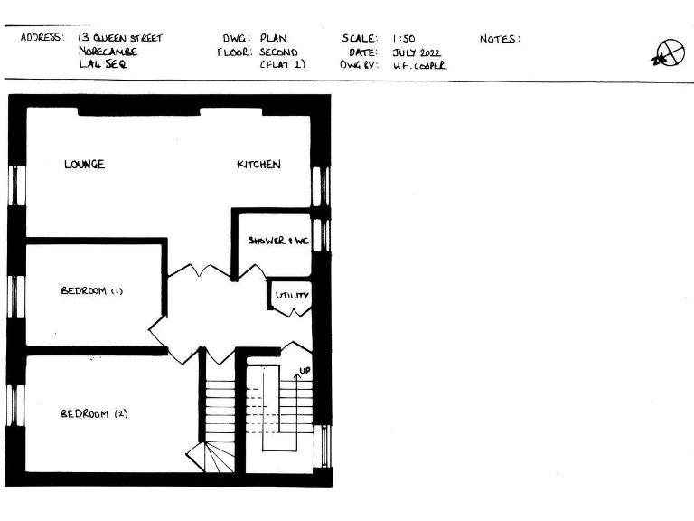
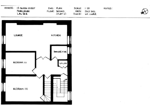
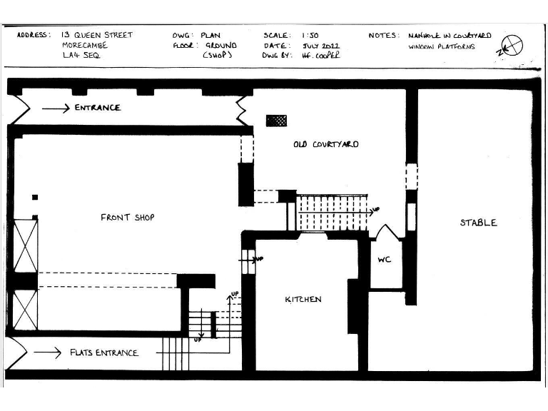
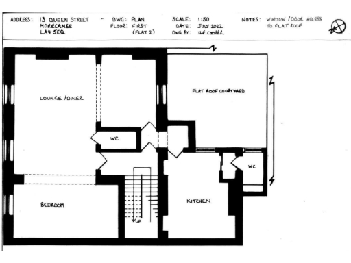
Discover a remarkable investment opportunity with this terraced property on Queen Street, Morecambe, ideally positioned in the bustling town center. The ground and lower floors currently function as a leased café, providing a steady income of £1,000 per month. Above, the first floor offers versatile potential for conversion into two residential flats, previously operational as such, while the second and third floors boast a newly refurbished 3-bedroom maisonette, complete with modern amenities and attractive open-plan living spaces.

Just a short stroll from the scenic seafront and upcoming attractions like the Eden Project, this property presents future flexibility for both residential and commercial growth. With recent renovations enhancing the maisonette's appeal, this is a unique chance for investors to capitalize on the revitalization of Morecambe's market, promising solid rental yields or the option for holiday lets. The freehold status and exceptionally low council tax further amplify the potential. Don’t miss out on this prime property; the demand may not last long!

Property Details

Brochure Descriptions

Image Descriptions

Floorplan Description

Rooms

Textual Property Features

Detected Visual Features

EPC Details

Nearby Schools

Nearest Bars And Restaurants

,,,,}

Nearest General Shops

,,}

Nearest Grocery shops

,,}

Nearest Supermarkets

,,}

Nearest Religious buildings

,,}

Nearest Medical buildings

,,,}

Nearest Leisure Facilities

,,,,}

Nearest Tourist attractions

,,}

Nearest Train stations

,,,,}

Nearest Bus stations and stops

,,,,}

Nearest Hotels

,,}

Tags

Local Market Stats

AirBnB Data

Similar Properties

Meta

High Res Images

Compatible Images

Low res Images

Thumbnails

Raw Images

High Res Floorplan Images

Compatible Floorplan Images

Low res Floorplan Images

FloorplanImages Thumbnail

Raw Floorplan Images