Low-maintenance two-bedroom bungalow in peaceful Bebington retirement development..
Two-bedroom single-level bungalow, 573 sq ft
Retirement development with communal gardens and social setting
Off-street resident and visitor parking; small private driveway
Leasehold tenure — check length and service charges
Compact internal footprint; limited storage and living space
Built 1980s with double glazing; straightforward maintenance expected
No flood risk; very low local crime and fast broadband
Close to shops, bus links, medical facilities and schools
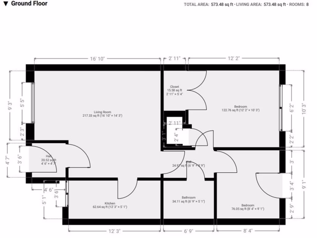
This two-bedroom terraced bungalow in Heathcote Gardens offers single-level, low-maintenance living tailored for downsizers or retirees. The compact 573 sq ft layout includes a bright lounge, separate fitted kitchen, two bedrooms and an accessible bathroom — all arranged on one floor for ease of use.
Set within a peaceful, well-kept retirement development, the property benefits from communal gardens and on-site resident and visitor parking. Built in the 1980s, the home has double-glazed windows and a traditional brick exterior with a small driveway and porch, reflecting straightforward, practical construction.
Important practical points: the home is leasehold (terms and service charges should be confirmed) and the internal footprint is small, so storage and space are limited. There is no flood risk and the area is affluent with very low crime, fast broadband and excellent mobile signal — helpful for independent living and staying connected.
This is a straightforward, move-in-ready option for someone seeking quiet, single-level living close to local amenities, transport and medical facilities. It suits a buyer prioritising convenience and community over large living spaces; potential buyers should check lease details and communal service arrangements before committing.
2 bedroom detached bungalow for sale in Heathcote Gardens, Bebington, CH63 — £135,000 • 2 bed • 1 bath • 495 ft²
2 bedroom bungalow for sale in Bridle Park, Bromborough, Wirral, CH62 — £145,000 • 2 bed • 1 bath • 641 ft²
2 bedroom semi-detached bungalow for sale in Heathfield Road, Bebington, CH63 — £280,000 • 2 bed • 1 bath • 850 ft²
1 bedroom bungalow for sale in Rectory Close, Birkenhead, Merseyside, CH42 — £120,000 • 1 bed • 1 bath • 433 ft²
2 bedroom retirement property for sale in Heath Road, Bebington, Wirral, CH63 — £120,000 • 2 bed • 1 bath • 652 ft²
2 bedroom retirement property for sale in Brimstage Road, Heswall, Wirral, CH60 — £175,000 • 2 bed • 1 bath • 633 ft²






























































