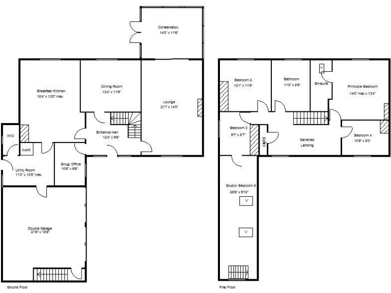
**Standout Features:**
- Spacious 5-bedroom detached home in a peaceful cul-de-sac
- Located in a beautiful conservation area of Bessacarr
- Extensive double garage with an independent studio/office space
- Large, modern breakfast kitchen with integrated appliances
- Tranquil garden with manicured lawns and patio area
- Short distance to Lakeside retail and leisure amenities
**Notable Concerns:**
- High crime rate in the local area
- Council Tax band F may be a consideration for buyers
Discover a haven of comfort and elegance with this substantial 5-bedroom detached home nestled in the serene St. Bartholomews Rise, Doncaster. This charming stone-built property features well-proportioned living spaces, including a dual-aspect lounge that opens into a PVC conservatory, and a large contemporary breakfast kitchen equipped with modern amenities. The versatile studio above the double garage can serve as a fifth bedroom or an independent office, ideal for remote work or guest accommodation.
Surrounded by beautifully landscaped gardens, this home provides a private and inviting outdoor space for family gatherings and quiet evenings. While the location offers access to amenities and is well-connected to the motorway network, potential buyers should be aware of the high crime rate in the area and consider the implications of living near such a community. Early viewing is advised to secure this exclusive property, as homes in this sought-after area are highly desirable and won't last long on the market. Embrace the potential to create lasting memories in a home that truly blends comfort with style.
5 bedroom detached house for sale in St. Nicholas's Way, Bawtry, Doncaster, DN10 6HB, DN10 — £675,000 • 5 bed • 2 bath • 2583 ft²
5 bedroom detached bungalow for sale in Grange Road, Bessacarr, Doncaster, DN4 — £575,000 • 5 bed • 2 bath • 2098 ft²
3 bedroom detached house for sale in Sandbeck Road, Benntthorpe, Doncaster, DN4 — £335,000 • 3 bed • 2 bath • 975 ft²
4 bedroom detached house for sale in Dunsil Villas, South Elmsall, Pontefract, WF9 — £875,000 • 4 bed • 4 bath • 3055 ft²
5 bedroom detached house for sale in Belridge Close, Barnsley, S75 — £585,000 • 5 bed • 3 bath • 2120 ft²
5 bedroom detached house for sale in Cantley Lane, Bessacarr, Doncaster, DN4 — £950,000 • 5 bed • 3 bath • 3047 ft²










































































































































