Large listed building with serious conversion upside in village centre.
Grade II listed four-storey townhouse circa 1600, abundant period detail
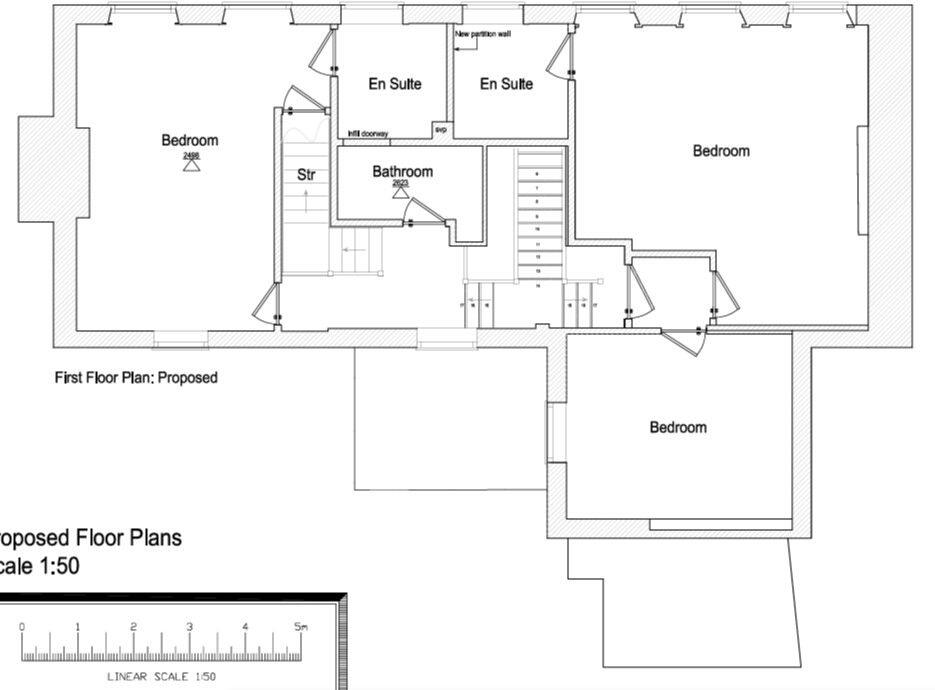
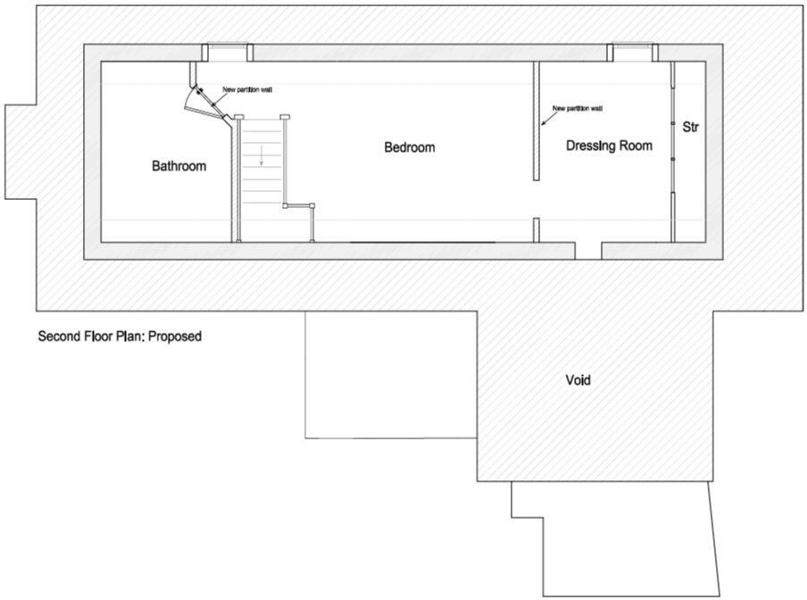
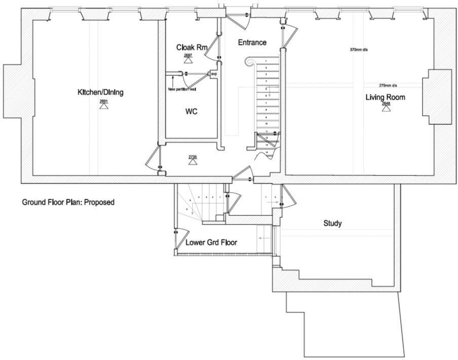
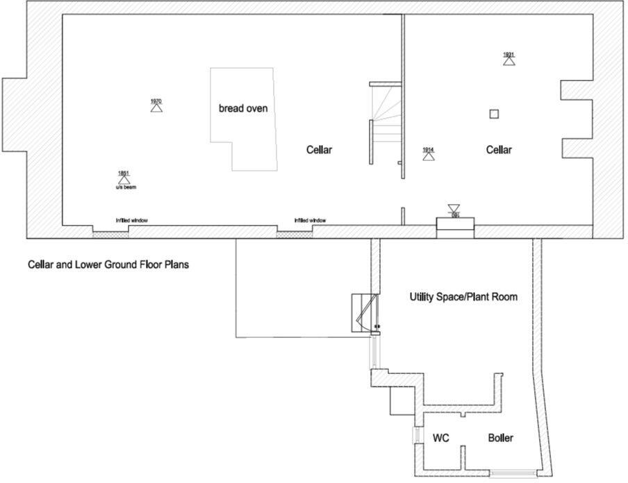
A rare Grade II listed town centre property with substantial internal space and strong conversion potential. Set over four storeys with approximately 3,500–3,700 sq ft, the building retains many period features — ornate cornicing, sash windows, marble surrounds and an impressive turned staircase — and benefits from a large cellar and a rear courtyard with an outbuilding.
Planning application 24/01547/FUL for conversion to residential has been submitted/considered by Braintree Council, reflecting a clear route to a four-bedroom home or several self-contained units. The property is freehold, has mains services and high-speed broadband availability, and is offered with no onward chain.
Significant renovation is required: the building currently operates as commercial premises and needs full conversion and modernisation to become a comfortable residence. Listed status will constrain works and may add cost and delay; specialist consent and compliance with listed-building requirements will be necessary.
This sale is by Modern Method of Auction. Successful bidders must complete within a 56-day reservation period, pay a non-refundable reservation fee equal to 4.5% of the purchase price (minimum £6,600 including VAT), and purchase a Buyer Information Pack for £349. Prospective buyers should inspect the property, confirm mortgage arrangements, and factor in renovation, listed-building works and auction costs before bidding.
4 bedroom house for sale in St. James Street, Castle Hedingham, Essex, CO9 — £475,000 • 4 bed • 1 bath • 2572 ft²
3 bedroom semi-detached house for sale in Nunnery Street, Castle Hedingham, CO9 — £375,000 • 3 bed • 2 bath • 1974 ft²
Land for sale in Queen Street, Castle Hedingham, Essex, CO9 — £360,000 • 4 bed • 4 bath
2 bedroom cottage for sale in Bayley Street, Castle Hedingham, Halstead, CO9 — £450,000 • 2 bed • 1 bath • 1420 ft²
3 bedroom semi-detached house for sale in Park Vale Close, Castle Hedingham, Halstead, CO9 — £180,000 • 3 bed • 1 bath • 797 ft²
4 bedroom detached house for sale in King Street, Castle Hedingham, Essex, CO9 — £1,200,000 • 4 bed • 2 bath • 2919 ft²






























































































