WA5 1QZ - 3 bedroom semidetached house for sale in Liverpool Road, Gr…

View on Property Piper

3 bedroom semi-detached house for sale in Liverpool Road, Great Sankey, WA5

Summary - 168 LIVERPOOL ROAD GREAT SANKEY WARRINGTON WA5 1QZ

3 bed 1 bath Semi-Detached

Turnkey three-bedroom semi with south garden, parking and excellent local schools..
- Newly renovated throughout with modern open-plan kitchen and living area
- Sunny south-facing rear garden ideal for family outdoor use
- Off-street shingle driveway with multiple vehicle parking
- One family bathroom for three bedrooms (may be tight for families)
- Leasehold: long lease with uncollected ground rent to clarify
- EPC rating D; solid brick walls assumed uninsulated, may affect bills
- Very low crime area with fast broadband and excellent mobile signal
- Built c.1900–1929 with Tudor‑Revival bay and period character
This newly renovated three-bedroom semi-detached home on Liverpool Road blends period character with contemporary living. The property has been modernised throughout with an open-plan kitchen/living area, new fixtures, and a rear extension creating a bright family hub. Off-street parking and a sunny south-facing rear garden add practical family comforts.

Set in a very low-crime, affluent neighbourhood with excellent mobile signal and fast broadband, the house is well placed for commuters and families. Several well-regarded primary and secondary schools are nearby, and local amenities and bus links are within easy reach. The property was built c.1900–1929 and retains attractive Tudor-Revival curb appeal.

Important practical details to note: the home is sold leasehold with a long lease and an uncollected ground rent; prospective buyers should verify terms. The EPC is D and the original solid brick walls are assumed to lack insulation, which may affect heating costs despite mains gas central heating. There is one family bathroom for three bedrooms.

Overall this is a turnkey, stylish home that suits a growing family seeking a move-in-ready house with period charm, modern living space and reliable transport and school links. Buyers wanting maximum energy efficiency should factor possible insulation upgrades and EPC considerations into their plans.

Property Details

Image Descriptions

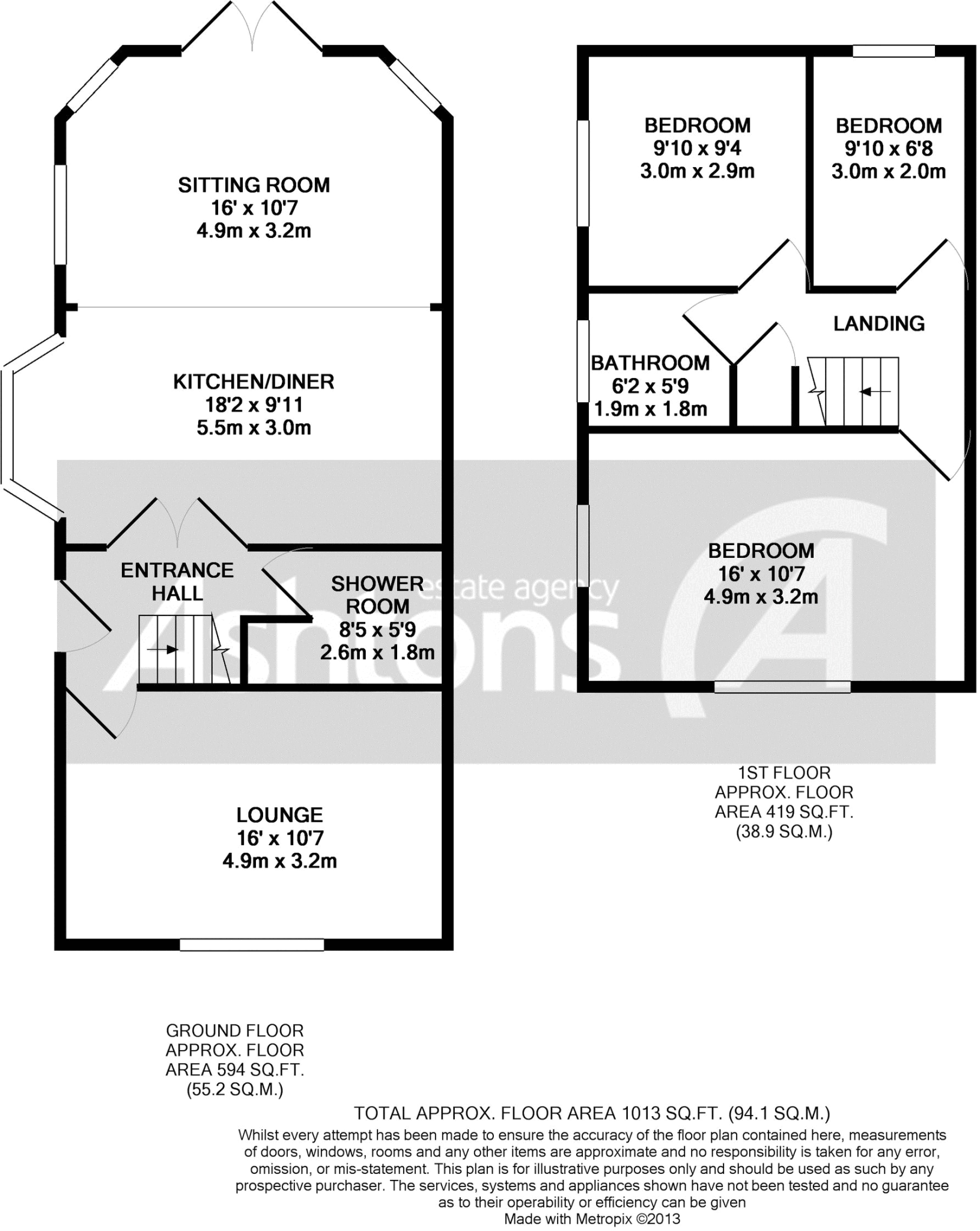
Floorplan Description

Rooms

Textual Property Features

Target Audience

AI Tags

Detected Visual Features

EPC Details

Nearby Schools

Nearest Bars And Restaurants

,,,,}

Nearest General Shops

,,}

Nearest Grocery shops

,,}

Nearest Supermarkets

,,}

Nearest Religious buildings

,,}

Nearest Medical buildings

,,,}

Nearest Airports

,}

Nearest Leisure Facilities

,,,,}

Nearest Tourist attractions

,,}

Nearest Train stations

,,,,}

Nearest Bus stations and stops

,,,,}

Nearest Hotels

,,}

Tags

Local Market Stats

AirBnB Data

Similar Properties

Meta

High Res Images

Compatible Images

Low res Images

Thumbnails

Raw Images

High Res Floorplan Images

Compatible Floorplan Images

Low res Floorplan Images

FloorplanImages Thumbnail

Raw Floorplan Images