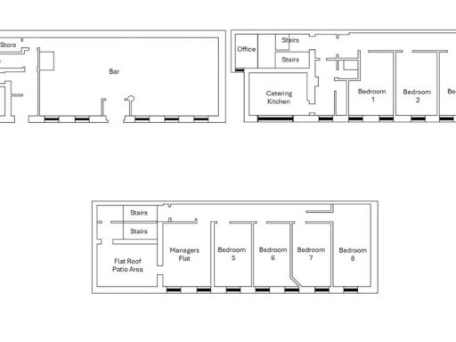
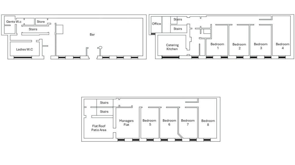
**Standout Features:**
- Prominent building in Ossett town center
- Approved planning for nine en-suite hotel rooms
- Established wine bar with late license (11am to 2am)
- Partially completed rooms; renovation potential
- Potential rental income of £62,500 per annum as HMO
- Large private flat with patio for manager's accommodation
**Summary:**
This exceptional guest house in Ossett, West Yorkshire, presents a unique investment opportunity with significant potential for conversion into a lucrative nine-bedroom hotel, complemented by a ground floor wine bar that's been a local favorite for 25 years. Currently at the first fix stage, the upper floors feature four partially finished en-suite guest rooms, with ample space to create an additional five, making it a prime candidate for the ever-needed hotel accommodation in the area.
The property, steeped in character with its Victorian façade, includes a spacious open-plan bar and music venue that's fully equipped for immediate business operation, or it could be reimagined to serve hotel guests, adding dining options or daytime café services. Situated directly across from the town's main public car park, accessibility is assured.
While the property does require completion and renovation, the groundwork is already laid for a high-return project that could cater to both transient guests and long-term tenants, with an estimated annual rental income of £62,500 if operated as an HMO. Don't miss out on this fantastic opportunity to capitalize on a vibrant local business landscape; the rarity of such properties means it won’t be available for long!
6 bedroom guest house for sale in Hotels, Oxenhope, West Yorkshire, BD22 — £799,950 • 6 bed • 1 bath
Pub for sale in Licenced Trade, Pubs & Clubs, West Yorkshire, WF5 — £319,950 • 1 bed • 1 bath • 3455 ft²
Commercial property for sale in Bondgate, Pontefract, WF8 — £600,000 • 9 bed • 8 bath • 2674 ft²
10 bedroom hotel for sale in The Wheldale Hotel, Wheldon Road, Castleford, West Yorkshire, WF10 2SD, WF10 — £500,000 • 10 bed • 1 bath • 5615 ft²
9 bedroom terraced house for sale in Bondgate, Pontefract, WF8 — £600,000 • 9 bed • 8 bath • 2480 ft²
Pub for sale in Dalesway Leeds Road, Ilkley, LS29 8DH, LS29 — £795,000 • 1 bed • 1 bath






























