SS15 6GP - 2 bed refurbished ground floor flat in School Avenue, SS15…

View on Property Piper

2 bedroom flat for sale in School Avenue, Basildon, SS15

Summary - School Avenue, Basildon SS15 6GP

2 bed 1 bath Flat

Move-in ready two-double flat with parking and long lease.
Ground-floor flat — no stairs or lifts required
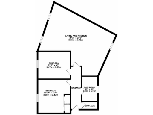
A bright, fully refurbished ground-floor flat offering practical single-level living in central Basildon. The open-plan lounge/kitchen/diner is spacious and modern, with two genuine double bedrooms — the master including fitted wardrobes — and a brand-new bathroom finished to a high standard. Allocated off-street parking and a pleasant communal green space to the front add convenience and a sense of openness.

This home suits downsizers or buyers seeking a low-maintenance, move-in-ready property. Benefits include mains gas heating with boiler and radiators, fast broadband, excellent mobile signal and a long lease (c.106–107 years). Service charge and ground rent are modest for a communal development, helping with budgeting for ongoing costs.

Buyers should note practical considerations: the wider area scores as deprived with above-average recorded crime levels, which may concern some purchasers. The building is a modern timber-frame construction (c.2007–2011), and the flat sits in a mid-terrace apartment block rather than a standalone house. Council and community amenities are nearby, and Laindon C2C station and major roads (A127/A13) provide straightforward commuting options.

Overall, this ground-floor apartment represents a sensible, low-effort choice for those prioritising accessibility, modern finishes and convenient transport links, provided neighbourhood factors are acceptable to the buyer.

Property Details

Brochure Descriptions

Image Descriptions

Floorplan Description

Rooms

Textual Property Features

Target Audience

AI Tags

Detected Visual Features

EPC Details

Nearby Schools

Nearest Bars And Restaurants

,,,,}

Nearest General Shops

,,}

Nearest Grocery shops

,,}

Nearest Supermarkets

,,}

Nearest Religious buildings

,,}

Nearest Medical buildings

,,,}

Nearest Airports

,}

Nearest Leisure Facilities

,,,,}

Nearest Tourist attractions

,,}

Nearest Train stations

,,,,}

Nearest Bus stations and stops

,,,,}

Nearest Hotels

,,}

Tags

Local Market Stats

Similar Properties

Meta

High Res Images

Compatible Images

Low res Images

Thumbnails

Raw Images

High Res Floorplan Images

Compatible Floorplan Images

Low res Floorplan Images

FloorplanImages Thumbnail

Raw Floorplan Images