**Standout Features:**
- Newly renovated Victorian semi-detached house
- 2/3 bedrooms and 2 bathrooms
- Private south-facing garden, garage, and off-road parking
- Spacious open-plan kitchen/diner with high-end fittings
- Custom-built home office with amenities
- Excellent location in a cosmopolitan neighborhood near schools and local amenities
- Planning permission suitable for conversion
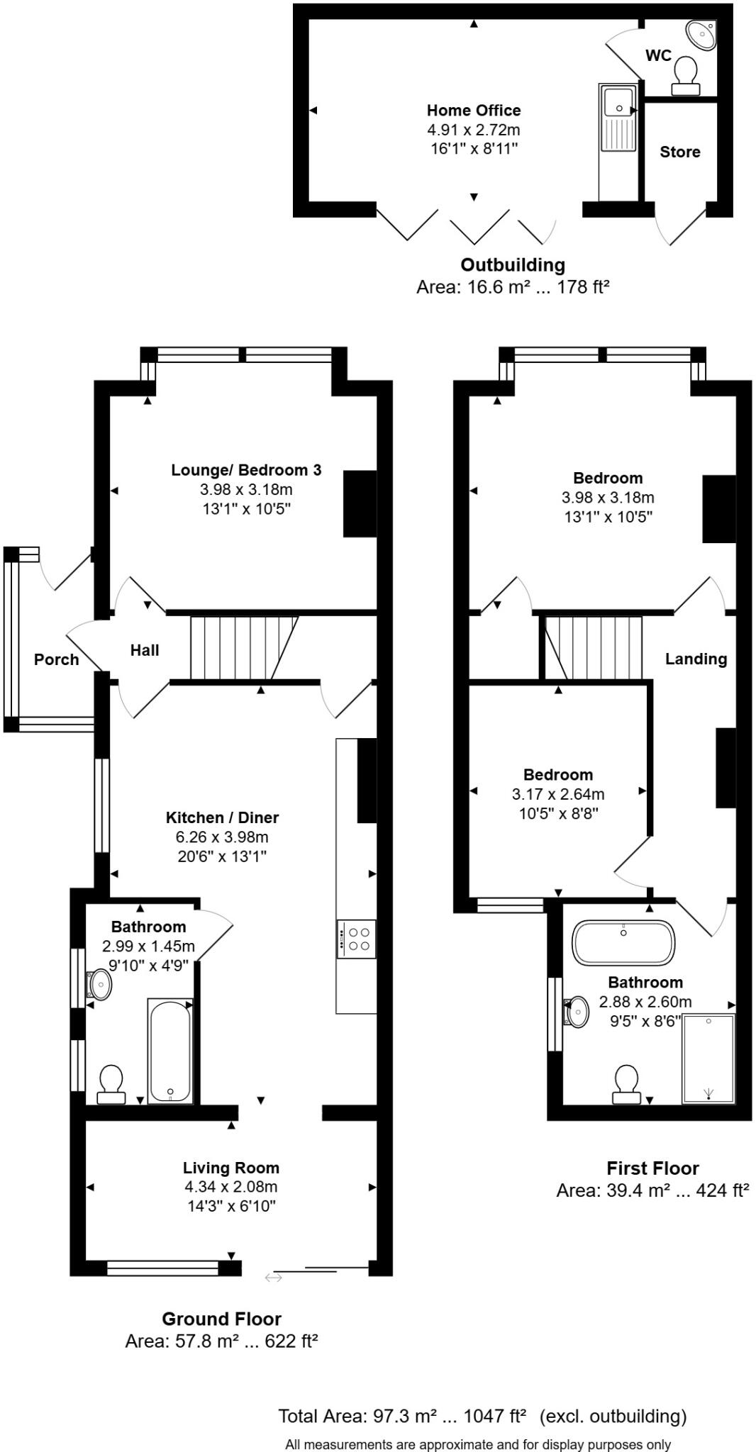
Discover this exquisite 2/3-bedroom Victorian semi-detached house in the vibrant Charminster area, perfect for families or first-time buyers seeking modern comfort blended with classic charm. Newly renovated to an exceptional standard, this property features a spacious open-plan kitchen and dining area with contemporary finishes, as well as a cozy living room that can double as an additional bedroom. Enjoy the luxury of a private south-facing garden, ideal for outdoor gatherings or simply unwinding after a long day.
The upper floor boasts two generously sized bedrooms, complete with custom-made wardrobes, and a unique family bathroom featuring elegant fixtures and stylish exposed brickwork. This home’s standout attraction is the bespoke home office, equipped with all necessary utilities—perfect for remote work or hobbies. With off-road parking and a garage, plus planning permission suitable for further conversion, this home has everything you need for a growing family or as a worthwhile investment.
Located near a variety of local shops, cafes, and excellent schools, this property not only offers comfort but also a vibrant lifestyle. Don't miss out on this opportunity—properties in this area move quickly!
3 bedroom semi-detached house for sale in Shelbourne Road, Bournemouth, BH8 — £425,000 • 3 bed • 3 bath • 1152 ft²
3 bedroom apartment for sale in Kings Road, Charminster, Bournemouth, BH3 — £240,000 • 3 bed • 1 bath • 782 ft²
2 bedroom semi-detached house for sale in Malmesbury Park Road, Bournemouth, BH8 — £335,000 • 2 bed • 1 bath • 782 ft²
4 bedroom semi-detached house for sale in Capstone Road, Charminster, Bournemouth, BH8 — £350,000 • 4 bed • 2 bath • 1330 ft²
3 bedroom semi-detached house for sale in Bournemouth, BH3 — £385,000 • 3 bed • 1 bath • 1165 ft²
4 bedroom detached house for sale in Nortoft Road, Charminster, Bournemouth, BH8 — £375,000 • 4 bed • 1 bath • 1221 ft²






































































