**Standout Features:**
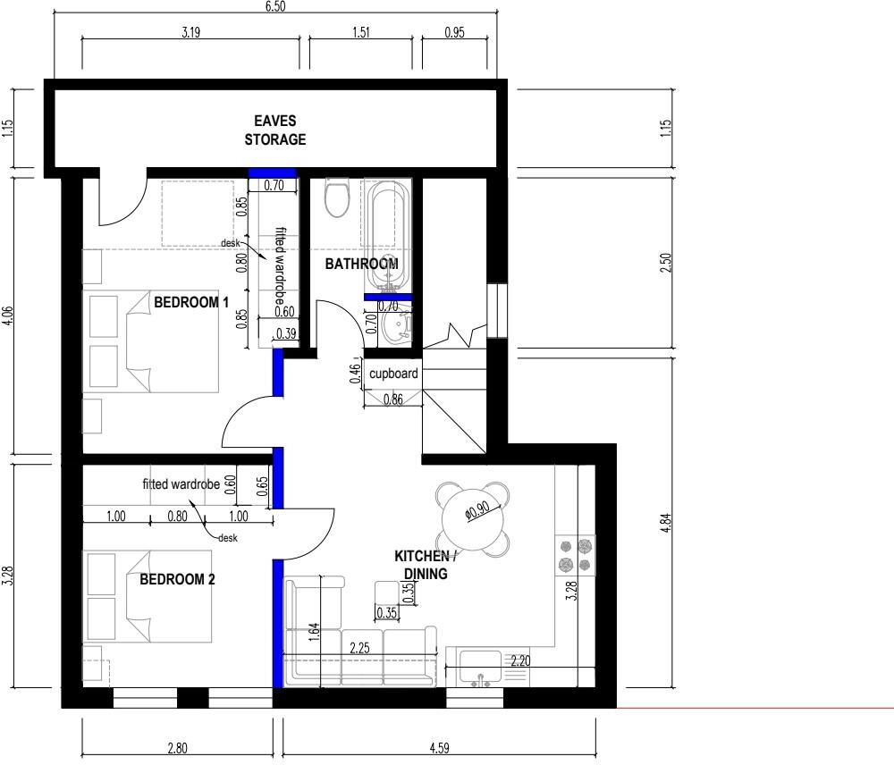
- Newly renovated two-bedroom flat
- Open-plan living area with modern kitchen
- High-spec interior with integrated appliances
- Built-in storage in both bedrooms
- Central location near Tooting Broadway Tube and St. George's Hospital
- Leasehold with 197 years remaining
- Low council tax and average service charge
**Concise Summary:**
Discover modern urban living in this stylish, fully renovated two-bedroom flat, ideally located just minutes from Tooting Broadway Tube station and St. George’s Hospital. With a bright, open-plan layout, this property features a contemporary kitchen equipped with integrated appliances, making it perfect for hosting or cozy family nights. The main bedroom includes built-in storage, while the second bedroom can easily serve as a guest room or home office, enhancing the flat’s versatility.
Set in a vibrant neighborhood with access to Tooting’s rich cultural scene, including local markets and cafes, this home offers the ideal blend of comfort and convenience. Enjoy ample green spaces at Tooting and Figges Marsh commons for weekend relaxation. While the flat is in excellent condition, an above-average crime rate in the surrounding area may be a consideration for some. With a competitive price of £425,000, this property is an excellent investment opportunity for first-time buyers or small families looking for a stylish, affordable home in a sought-after location. Don’t miss your chance to secure this gem!
2 bedroom flat for sale in Tooting High Street, Tooting, London, SW17 — £385,000 • 2 bed • 1 bath • 664 ft²
2 bedroom flat for sale in Barnfield Lodge, Tooting Broadway, SW17 — £350,000 • 2 bed • 1 bath • 641 ft²
1 bedroom flat for sale in St. Georges Court SW17 — £325,000 • 1 bed • 1 bath • 428 ft²
3 bedroom flat for sale in Tooting High Street, Tooting High Street, SW17 — £400,000 • 3 bed • 1 bath • 1012 ft²
2 bedroom flat for sale in Alfred Hurley House, Blackshaw Road, Tooting, SW17 — £375,000 • 2 bed • 1 bath • 643 ft²
2 bedroom flat for sale in Gassiot Road, Tooting, London, SW17 — £475,000 • 2 bed • 1 bath • 618 ft²










































