**Standout Features:**
- Detached bungalow in a quiet cul-de-sac
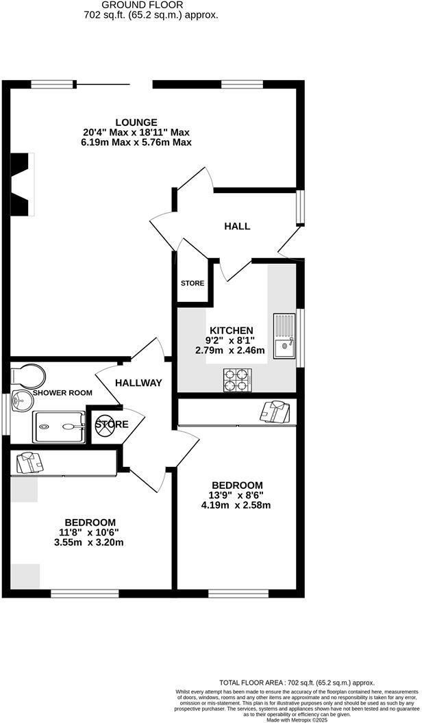
- 702 sq. ft. of living space
- Spacious 'L' shaped lounge/diner opening to south-west facing garden
- Modern fitted kitchen with integrated appliances
- Two double bedrooms with built-in furniture
- Attractive, low-maintenance gardens
- Detached single garage and ample off-street parking
- No upward chain for a smooth sale
This delightful detached bungalow on Medlock Road offers an idyllic, low-maintenance lifestyle in a sought-after cul-de-sac. With a generous 702 square feet of well-designed living space, the property features a bright and airy 'L' shaped lounge/diner, perfect for relaxation and entertaining, which opens onto a beautifully landscaped south-west facing garden. The modern fitted kitchen, equipped with integrated appliances, caters to all your culinary needs, while two spacious double bedrooms provide ample comfort, complete with stylish fitted furniture for added convenience.
Ideal for families, retirees, or first-time buyers, this home is located near esteemed schools and essential local amenities. The detached brick-built garage and extensive off-street parking enhance its appeal, making it a rarity in the area. With no upward chain, this property is move-in ready and awaits your personal touch. Don't miss this opportunity for a peaceful sanctuary with scope for future renovations—schedule your viewing today!
2 bedroom detached bungalow for sale in Trevose Close, Walton, Chesterfield, S40 — £250,000 • 2 bed • 1 bath • 702 ft²
2 bedroom bungalow for sale in Moorland View Road, Walton, Chesterfield, S40 — £335,000 • 2 bed • 1 bath • 1101 ft²
2 bedroom semi-detached bungalow for sale in Davian Way, Walton, Chesterfield, S40 — £240,000 • 2 bed • 1 bath • 631 ft²
2 bedroom detached bungalow for sale in Lichfield Road, Walton, Chesterfield, S40 — £315,000 • 2 bed • 1 bath • 626 ft²
2 bedroom semi-detached bungalow for sale in Farndale Avenue, Walton, Chesterfield, S42 — £190,000 • 2 bed • 1 bath • 420 ft²
3 bedroom detached bungalow for sale in Woodvale Close, Somersall, Chesterfield, S40 — £325,000 • 3 bed • 1 bath • 1056 ft²


























































