Private 1.5-acre plot with generous living and versatile outbuildings for family life.
Approximately 1.5-acre private plot with mature trees and extensive lawns
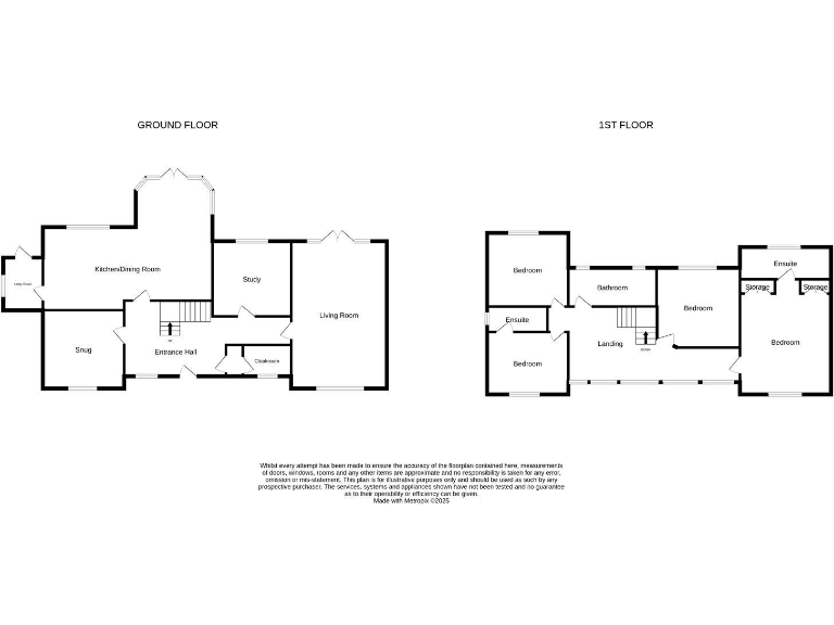
Tucked away at the end of Boxhouse Lane, this substantial detached house offers generous family accommodation across two floors and sits within approximately 1.5 acres (STS) of mature, private grounds. The layout includes three reception rooms, a study, a well-equipped kitchen with dining area, four double bedrooms, two ensuites and a family bathroom — space designed for flexible family living and entertaining.
Outside the house sits centrally within extensive lawns, established trees and mature hedging, with a gated entrance, large gravel turning circle and detached double garage with adjoining workshop. The rear terrace and paved patio provide direct access from the main living areas, making outdoor dining and easy supervision of children straightforward. Heating is provided by an air-source heat pump serving radiators, and the property benefits from double glazing installed since 2002.
Practical considerations include very slow broadband speeds and a rural location that may mean a longer drive for everyday amenities; the property sits in an ageing rural neighbourhood classification. Council tax is described as quite expensive. Conversely, mobile signal is excellent and the plot size, privacy and established setting are strong positives for buyers seeking seclusion and outdoor space.
This home will suit a family looking for a large, well-balanced residence in a discreet countryside setting, or buyers wanting a private retreat with scope to personalise and potentially update parts of the interior. The detached garage and workshop add useful secure storage or hobby space, while the sizeable grounds offer potential for landscaping, leisure or garden projects.
6 bedroom bungalow for sale in Coles Oak Lane, Dedham, Colchester, Essex, CO7 — £1,350,000 • 6 bed • 3 bath • 2486 ft²
5 bedroom detached house for sale in Coles Oak Lane, Dedham, Colchester, Essex, CO7 — £1,650,000 • 5 bed • 2 bath • 3261 ft²
5 bedroom detached house for sale in Ardleigh Road, Dedham, Colchester, Essex, CO7 — £875,000 • 5 bed • 2 bath • 2760 ft²
6 bedroom detached house for sale in Long Road West, Dedham, CO7 — £1,250,000 • 6 bed • 5 bath • 3188 ft²
4 bedroom house for sale in Saunders Field, Dedham, Colchester, Essex, CO7 — £775,000 • 4 bed • 3 bath • 1948 ft²
4 bedroom detached house for sale in The Heath, Dedham, Colchester, Essex, CO7 — £799,995 • 4 bed • 3 bath • 2034 ft²


























































































































