Contemporary two-bed home moments from Victoria Park, ideal for city-first buyers.
End-of-terrace Victorian house, newly renovated throughout
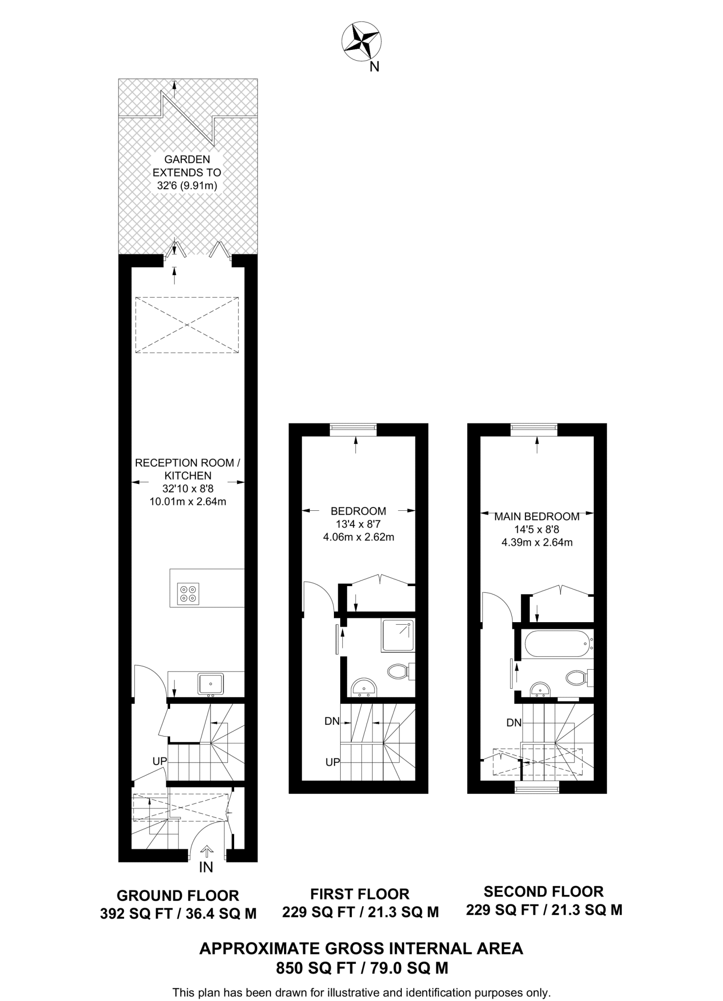
Bright open-plan reception with bi-folding doors to garden
Private low-maintenance paved garden, small plot size
Two good-sized bedrooms and two bathrooms across three floors
Garage included; useful for storage or parking
Approx. 850 sq ft — average-sized accommodation
Close to Victoria Park and Stepney Green transport links
Area has above-average crime and higher deprivation levels
This newly renovated two-bedroom end-of-terrace on Portelet Road offers contemporary living across three floors with a private garden and garage. Bright, open-plan reception with bi-folding doors creates a versatile living and entertaining space that connects directly to the paved, low-maintenance garden. At around 850 sq ft, the layout suits first-time buyers seeking modern finishes and a convenient inner-city location close to Victoria Park.
The house retains Victorian character externally while interiors are finished in a clean, modern style. Two good-sized bedrooms and two bathrooms provide practical family or sharer accommodation. Excellent mobile signal and fast broadband support home working and streaming, and Stepney Green station and local bus routes keep central London within easy reach.
Buyers should note the property sits on a small plot and the neighbourhood records above-average crime and higher area deprivation metrics. While the home is newly renovated and freehold, purchasers seeking large outdoor space or a quiet suburban setting may find the plot size and urban context limiting. Overall, this is a compact, well-presented home that balances period charm with contemporary fittings, close to green space and local amenities.
3 bedroom house for sale in Portelet Road, Stepney, London, E1 — £1,200,000 • 3 bed • 1 bath • 1009 ft²
2 bedroom house for sale in Woodseer Street, Brick Lane, London, E1 — £825,000 • 2 bed • 1 bath • 602 ft²
2 bedroom terraced house for sale in Michael Close, LONDON, London, E3 — £650,000 • 2 bed • 1 bath • 861 ft²
2 bedroom maisonette for sale in Driffield Road, Mile End, E3 — £750,000 • 2 bed • 1 bath • 740 ft²
2 bedroom semi-detached house for sale in Lichfield Road, Bow, E3 — £750,000 • 2 bed • 1 bath • 841 ft²
3 bedroom terraced house for sale in Grove Road, London, E3 — £1,000,000 • 3 bed • 2 bath • 1163 ft²


































































































