Chain-free three-bedroom semi with parking and garden — ready for improving to add value.
- Three bedrooms in a traditional two-storey layout
- Chain-free sale with searches available upfront
- Freehold property with off-street driveway parking
- Private rear garden; decent plot size
- Single bathroom only; may be tight for larger families
- Modest total area (786 sq ft) — compact living footprint
- Area has above-average crime and local deprivation indicators
- Good transport links, schools, shops within walking distance
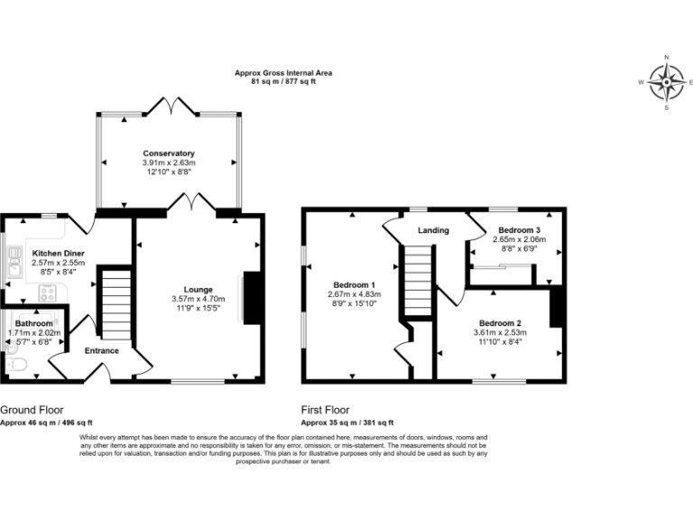
This three-bedroom semi-detached house on St. Marys Road offers a straightforward, chain-free purchase for a first-time buyer or small family. The freehold property includes off-street parking, a private garden and gas central heating, giving immediate practical benefits and sensible running costs.
The layout is traditional with two reception rooms and a bright bathroom. Rooms are described as spacious for the overall footprint (786 sq ft), so there’s potential to reconfigure or update to suit modern living. Title plan and searches are available upfront to speed a sale.
Set within walking distance of shops, tram and bus links, the home is well placed for daily commuting and local amenities, including several well-rated primary and secondary schools. Brunswick Park and local sports facilities are nearby for outdoor activities.
Buyers should note this property sits in an area with higher-than-average crime and local deprivation indicators. The house is modest in overall size and provides one bathroom, so families seeking larger living proportions may find it limiting. The mid-20th-century construction is sound but may benefit from cosmetic updating to maximise value.
3 bedroom semi-detached house for sale in Church Hill, Wednesbury, WS10 — £220,000 • 3 bed • 1 bath • 1002 ft²
3 bedroom semi-detached house for sale in Remembrance Road, WEDNESBURY, WS10 — £270,000 • 3 bed • 1 bath • 655 ft²
3 bedroom semi-detached house for sale in Dee Road, Walsall, WS3 — £185,000 • 3 bed • 2 bath • 964 ft²
3 bedroom semi-detached house for sale in Wakes Road, Wednesbury, WS10 — £250,000 • 3 bed • 1 bath • 689 ft²
3 bedroom semi-detached house for sale in Goscote Lane, Walsall, WS3 — £199,950 • 3 bed • 1 bath • 852 ft²
3 bedroom semi-detached house for sale in King Street, Walsall Wood, WS9 9LN , WS9 — £280,000 • 3 bed • 1 bath • 883 ft²


























































































