Modern family living with garden and garage in a peaceful semi-rural development.
Large open-plan kitchen and dining area with French doors to garden
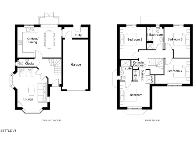
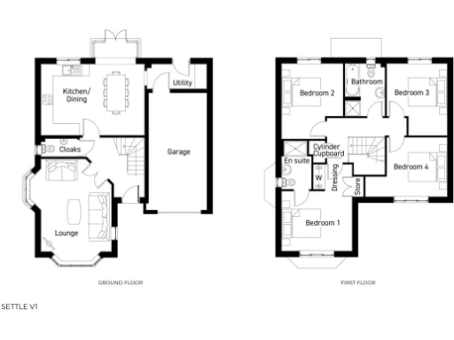
A generous four-bedroom detached house on Bilsthorpe Chase designed for family living and entertaining. The ground floor flows from a welcoming hallway into a light-filled lounge with bay windows and a large open-plan kitchen/diner that opens to the garden via French doors. A separate utility, downstairs cloaks and integral garage add everyday practicality.
Upstairs offers four double bedrooms, including a master with dressing area and private en-suite, alongside a contemporary family bathroom. The home benefits from energy-efficient features that reduce running costs and a 10-year NHBC warranty for added reassurance. The plot is a decent size and the property sits within a calm development with green spaces and commuter links.
Important practical notes: this is a new-build, chain-free home but tenure is not specified and should be confirmed. The listing records just one bathroom overall; buyers should check the confirmed bathroom count and exact internal specification. Local services include fast broadband and good nearby schools, while crime and deprivation levels are average.
This home suits growing families seeking modern, low-maintenance living in a semi-rural community. It offers clear move-in appeal and scope to personalise finishes, with built-in storage and a layout that supports family routines and entertaining.
4 bedroom detached house for sale in Bilsthorpe Chase
Kirklington Road
Bilsthorpe
NG22 8SH, NG22 — £321,000 • 4 bed • 1 bath • 837 ft²
4 bedroom detached house for sale in Bilsthorpe Chase
Kirklington Road
Bilsthorpe
NG22 8SH, NG22 — £396,000 • 4 bed • 2 bath • 1123 ft²
2 bedroom semi-detached house for sale in Bilsthorpe Chase
Kirklington Road
Bilsthorpe
NG22 8SH, NG22 — £199,000 • 2 bed • 1 bath • 648 ft²
4 bedroom detached house for sale in Orpington Way, Bilsthorpe, Newark, Nottinghamshire, NG22 — £350,000 • 4 bed • 3 bath
4 bedroom detached house for sale in Bramble Close, Bilsthorpe, NG22 — £370,000 • 4 bed • 2 bath • 1307 ft²
4 bedroom detached house for sale in Forest Link, Bilsthorpe, Newark, NG22 — £350,000 • 4 bed • 3 bath • 768 ft²


































