Refurbished two-bed flat near seafront with long lease and share of freehold.
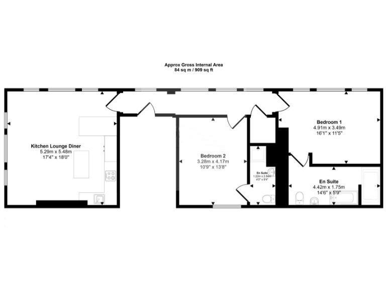
Spacious 909 sq ft fourth-floor apartment with high ceilings
Bright, spacious and freshly refurbished, this fourth-floor apartment combines contemporary living with period character in a Grade II listed block. The double-aspect reception and high ceilings create an airy living space, while two double bedrooms each include a private en-suite — well suited to a professional couple, small family or buy-to-let investor.
Practical strengths include a very long lease (approx. 992 years), share of freehold, chain-free sale and an EPC rating of C. The apartment extends to about 909 sq ft, has modern fitted appliances and an internal laundry cupboard. Its central location puts the seafront, theatres and restaurants within easy walking distance, with excellent mobile signal and fast broadband for home working or short-term lets.
Buyers should note material factors: the building’s Grade II listed status can restrict external changes and may complicate some works or permissions. The local area records higher-than-average crime, which may affect rental yield or homeowner comfort. Annual service charge is approximately £2,200; all lease and outgoings should be independently verified.
Overall this is a well-presented, move-in-ready apartment offering period charm and modern specification in a desirable coastal town centre location. It presents clear appeal for those seeking a stylish primary residence or a centrally located investment, provided buyers factor in listing constraints and local safety considerations.
2 bedroom apartment for sale in Howard Square, Eastbourne, BN21 — £430,000 • 2 bed • 2 bath • 1009 ft²
2 bedroom apartment for sale in Howard Square, Eastbourne, BN21 — £430,000 • 2 bed • 2 bath • 890 ft²
2 bedroom apartment for sale in Howard Square, Eastbourne, BN21 — £435,000 • 2 bed • 2 bath • 1003 ft²
2 bedroom apartment for sale in 5 Howard Square, Eastbourne, BN21 — £395,000 • 2 bed • 2 bath • 1281 ft²
2 bedroom apartment for sale in Howard Square, Eastbourne, BN21 — £440,000 • 2 bed • 2 bath • 1167 ft²
2 bedroom flat for sale in Howard Square, Eastbourne, BN21 — £440,000 • 2 bed • 2 bath • 1009 ft²






















































